EasyManua.ls Logo

LG MULTI V ARNU07GSBL4 - Page 18

LG MULTI V ARNU07GSBL4
520 pages
To Next Page IconTo Next Page
To Next Page IconTo Next Page
To Previous Page IconTo Previous Page
To Previous Page IconTo Previous Page
Loading...
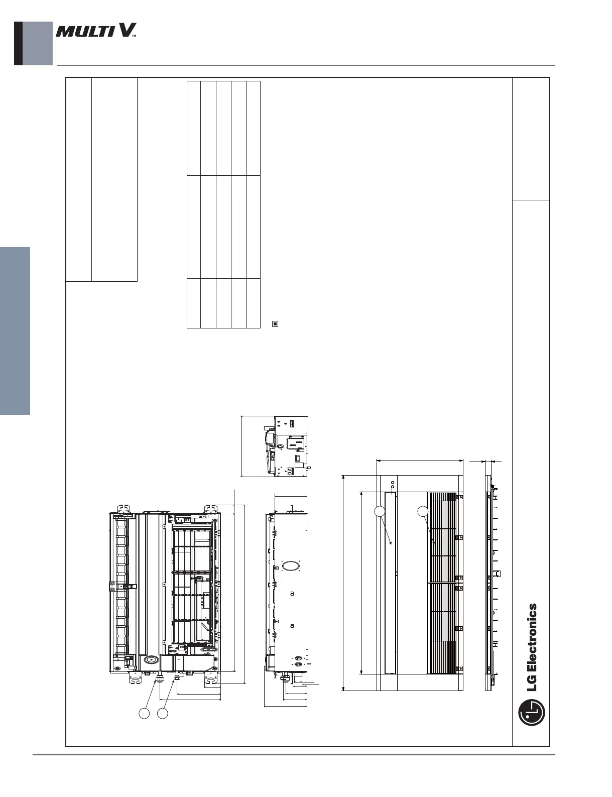
3. Dimensions
Indoor unit
6 _ Ceiling Cassette 1-Way
Indoor Units
CHASSIS CODE: TT
Ceiling Cassette 1-way
ARNU18GTT*4
ARNU24GTT*4
Name
1 Liquid pipe connection
Unit size(18k):ø6.35, (24k):ø9.52
2 Gas pipe connection
Unit size(18k):ø12.7, (24k):ø15.88
3 Air suction grill
4 Air discharge grill
Number Descripition
Note
1. Unit should be installed in compliance with the installation manual
in the product box.
2. Unit shall be grounded in accordance with the local regulations or
applicable national codes.
(unit : mm)
20.6
65.3
180.6
247.5
57.4
91
96.1
173.8
132
31.7
450
1,420
500
34
1,201(Air Outlet Hole)
65.1
1332
1180
(Panel Name: PT-UTC)
4
3
2
1

Table of Contents

Related product manuals