EasyManua.ls Logo

LG MULTI V ARNU09GTRC4 - Page 382

LG MULTI V ARNU09GTRC4
520 pages
To Next Page IconTo Next Page
To Next Page IconTo Next Page
To Previous Page IconTo Previous Page
To Previous Page IconTo Previous Page
Loading...
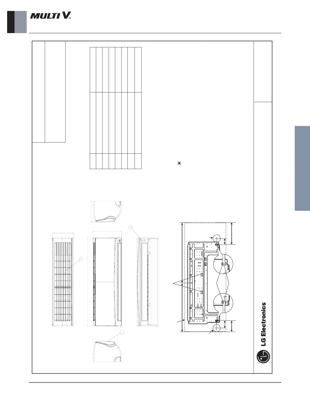
Wall Mounted Unit (Standard) _ 7
3. Dimensions
Indoor unit
Indoor Units
CHASSIS CODE: SC
Wall Mounted
ARNU18GSC*4
ARNU24GSC*4
Note
1. Unit should be installed in compliance with the installation manual
in the product box.
2. Unit shall be grounded in accordance with the local regulations or
applicable national codes.
Display & signal receiver
Part Name
Front panel
Air suction grille
Installation plate
Knockout hole
5
No.
2
4
3
1
Remark
[Unit : mm]
250
1030
325
210
ÿ70
ÿ70
69
56
Right rear
piping
Left rear
piping
Installation Plate
Measuring Tape
Measuring Tape
Hanger
Place a level on raised tab
Unit Outline
207
105
460 570

Table of Contents

Related product manuals