EasyManua.ls Logo

LG Therma V HU121 U33 - Operation Range

LG Therma V HU121 U33
115 pages
To Next Page IconTo Next Page
To Next Page IconTo Next Page
To Previous Page IconTo Previous Page
To Previous Page IconTo Previous Page
Loading...
36
THERMA V Split Type
Outdoor unit
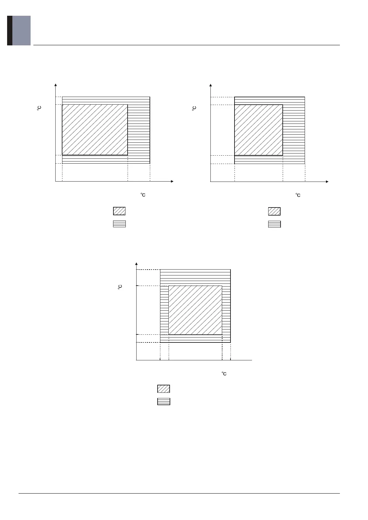
7. Operation Range
6 25
5
48
10
43
Outdoor Temperature(
)
Leaving Water Temperature( )
Continuous Operation
Operative
Cooling
(Fan coil unit)
30
16 25
5
48
10
43
Outdoor Temperature(
)
Leaving Water Temperature( )
Continuous Operation
Operative
30
Cooling
(Under floor)
Heating
Continuous Operation
Operative
5715
-20
35
-15
24
Outdoor Temperature( )
20
Leaving Water Temperature( )
50

Related product manuals