EasyManua.ls Logo

Lifesaver LIF5000 - Page 4

Lifesaver LIF5000
28 pages
Print Icon
To Next Page IconTo Next Page
To Next Page IconTo Next Page
To Previous Page IconTo Previous Page
To Previous Page IconTo Previous Page
Loading...
2
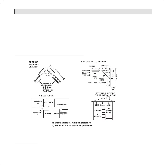
1.11 When mounting the alarm at the apex of a sloping ceiling it should be
located at least 500mm away from the apex but should not exceed
1500mm (see diagram).
1.12 Locate smoke alarm at both ends of a bedroom hallway or large room
if the hallway or room is more than 9m long.
1.13 Do not locate smoke alarms in kitchen areas due to potential nuisance
alarms from cooking fumes.
1. RECOMMENDED LOCATIONS OF ALARMS
5
INSTALLATION OF SMOKE ALARM
IMPORTANT: INCORRECT ORIENTATION OF SMOKE ALARM MAY DECREASE
OPERATIONAL EFFECTIVENESS

Related product manuals