EasyManua.ls Logo

Lucent DDM-2000 OC-3 - Page 1063

Lucent DDM-2000 OC-3
1224 pages
Print Icon
To Next Page IconTo Next Page
To Next Page IconTo Next Page
To Previous Page IconTo Previous Page
To Previous Page IconTo Previous Page
Loading...
363-206-285 Detailed Level Procedure: DLP-550
Issue 2, February 2000 Page 11 of 12
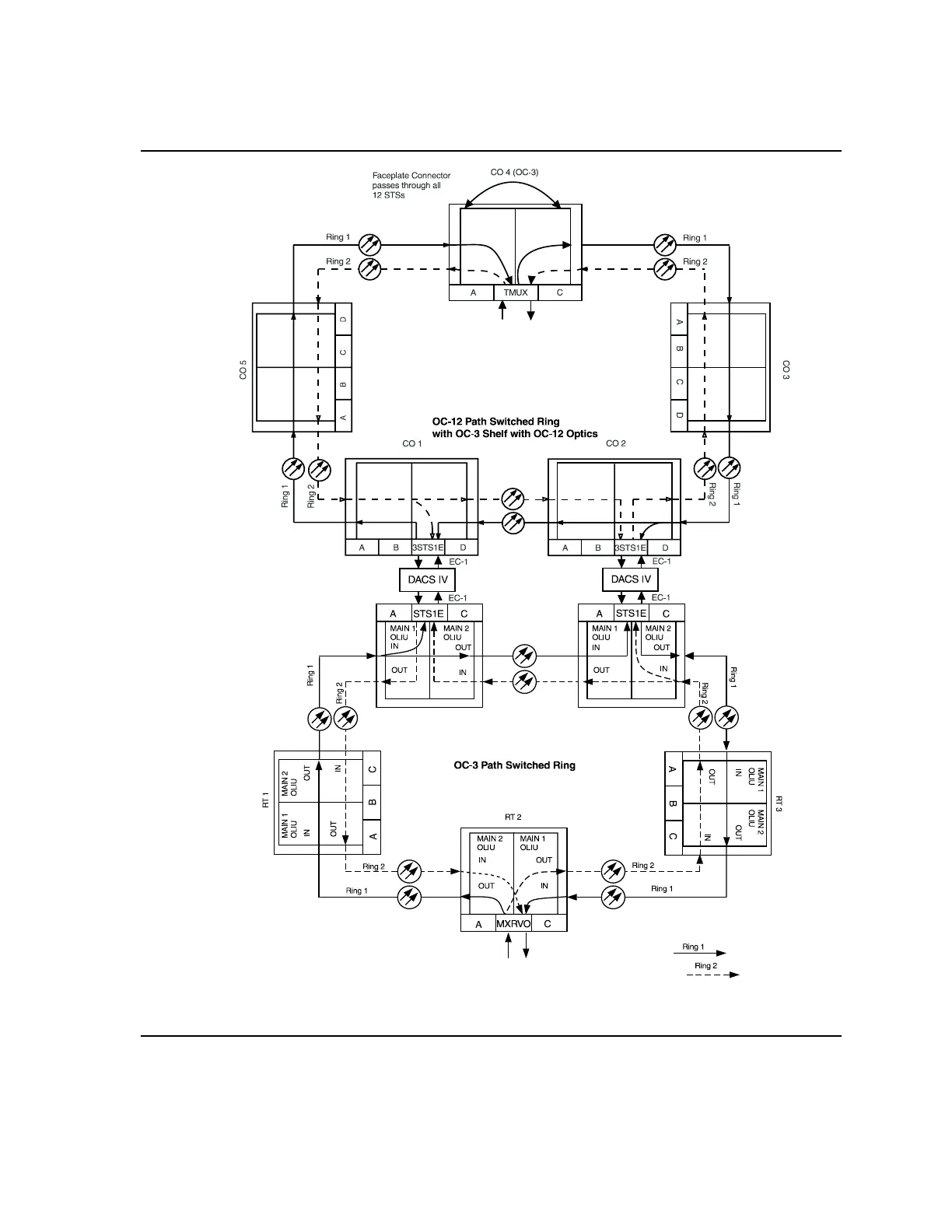
DDM-2000 OC-3 MULTIPLEXER
Figure 7 Dual Ring Interworking Cross-Connections (LAN to TMUX) (OC-3
with OC-12 Optics)
MAIN 1 MAIN 2
24/29-Type
OLIU
24/29-Type
OLIU
IN
IN
IN
IN IN
MAIN-B-1
MAIN-B-1
MAIN-B-1 MAIN-B-1
MAIN-B-2(P)
MAIN-B-2(P)
MAIN-B-2(P) MAIN-B-2(P)
IN
IN
IN
IN IN
OUT
OUT
OUT
OUT OUT
OLIU
OLIU
OLIU OLIU
OLIU
OLIU
OLIU OLIU
OUT
OUT
OUT
OUT OUT
mb-7 to mb-7 pass through
connection
(ent-crs-sts1:mb-7,mb-7)
mb-7 to mb-7 pass through
connection
(ent-crs-sts1:mb-7,mb-7)
M13 or C-bit formatted DS 3
m-7-1-1 to b-1-1 (ent-crs-vt1:m-7-1-1,b-1-1)
where:
b-1-1 = address of VT1.5 channel in TMUX
circuit pack in group B
m-7-1-1 = address of STS-1 #7 in MAIN OLIU,
VTG #1, VT #1
ent-crs-sts1:mb-7,c-2:cct=dc,ring=mb2
ent-crs-sts1:mb-7,c-2:cct=dc,ring=mb1
ent-crs-vt1:m-1-1-1,b-1-1:cct=dc,ring=m1
ent-crs-vt1:m-1-1-1,b-1-1:cct=dc,ring=m2
where:
mb-7 = address of STS-1 #7 in MAIN OLIU
c-2 = address of ED1 port #2 in 3STS1E
circuit pack in FNC
dc = type of cross-connection (drop and continue)
mb2 = ring received on MAIN-B-2(P) OLIU and
transmitted on MAIN-B-1 OLIU
m-1-1-1 to m-1-1-1
pass through connection
(ent-crs-vt1:m-1-1-1,m-1-1-1)
m-1-1-1 to m-1-1-1
pass through connection
(ent-crs-vt1:m-1-1-1,m-1-1-1)
b-1-1 to m-1-1-1 (ent-crs-vt1:b-1-1,m-1-1-1)
where:
b-1-1 = address of DS1 port 1, IMA LAN circuit
pack #1 in LOW SPEED GROUP B
m-1-1-1 = address of VT #1, VTG #1, STS #1 in
MAIN OLIU
DS1