EasyManua.ls Logo

Lucent DDM-2000 OC-3 - Page 1087

Lucent DDM-2000 OC-3
1224 pages
Print Icon
To Next Page IconTo Next Page
To Next Page IconTo Next Page
To Previous Page IconTo Previous Page
To Previous Page IconTo Previous Page
Loading...
DLP-553: Detailed Level Procedure 363-206-285
Page 15 of 20 Issue 2, February 2000
DDM-2000 OC-3 MULTIPLEXER
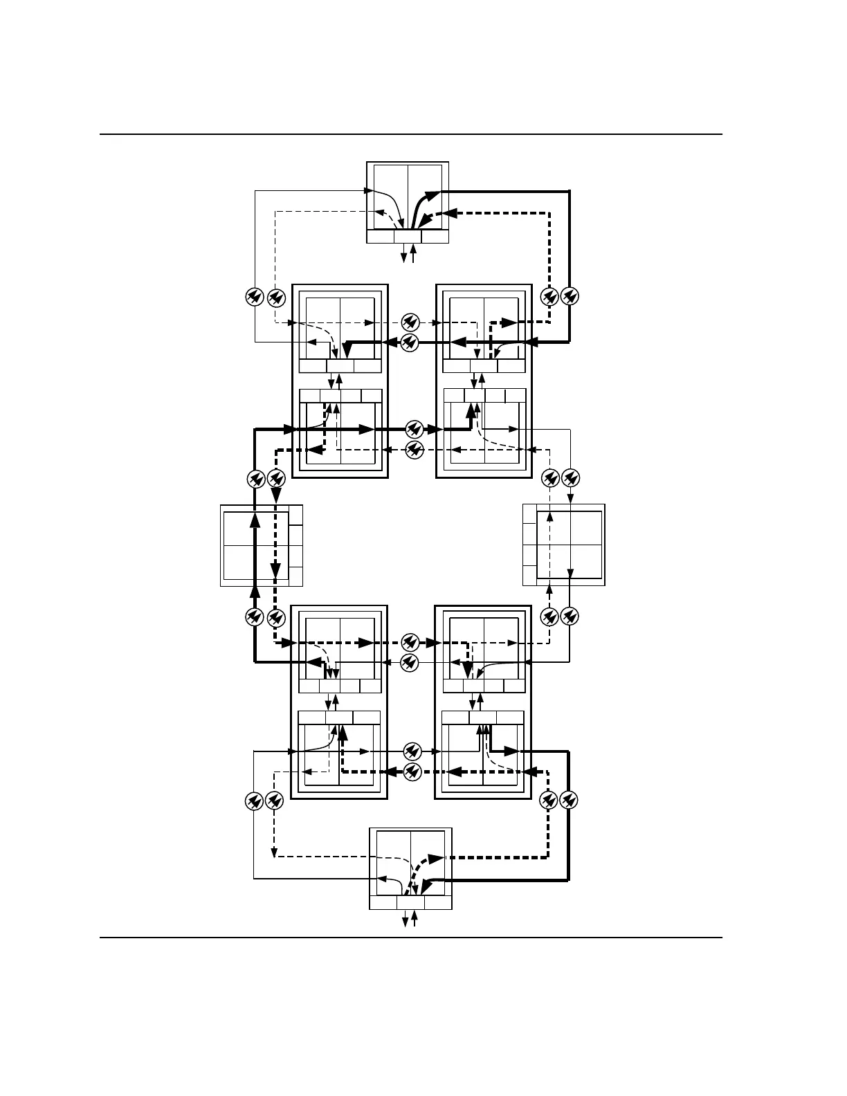
Figure 9 Example of DS3 Transmission Test in Dual Ring Interworking
Network
rtrv-state-path command
indicates Ring 2 active.
sw-path-sts1 or sw-path-vt1
used to switch path.
IN
OUT
IN
OUT
MAIN 2
OLIU
MAIN 1
OLIU
ABC
IN
OUTIN
OUT
MAIN 2
OLIU
MAIN 1
OLIU
AB C
EC-1 EC-1
rtrv-state-path command
indicates Ring 2 active.
sw-path-sts1 or sw-path-vt1
used to switch path.
RING 2 ACTIVE
RING 2 ACTIVE
IN
OUT
IN
OUT
MAIN 2
OLIU
MAIN 1
OLIU
ABC
IN
OUT
IN
OUT
MAIN 2
OLIU
MAIN 1
OLIU
EC-1
EC-1
ABC
CO 3 CO 4
rtrv-state-path command
indicates Ring 1 active.
sw-path-sts1 or sw-path-vt1
used to switch path.
RING 1 ACTIVE
RING 1 ACTIVE
MAIN 2
OLIU
MAIN 1
OLIU
A
BC
IN OUT
IN
OUT
RT 3
RING 1 ACTIVE
Ring 1
Ring 2 Ring 2
Ring 1
CO 1 CO 2
RING 2 ACTIVE RING 2 ACTIVE
IN
OUT
IN
OUT
IN
OUT
IN
OUT
MAIN B2
OLIU
MAIN B1
OLIU
AB
C
RING 1 ACTIVE
RING 1 ACTIVE
OC-12 path switched ring
D
MAIN B2
OLIU
MAIN B1
OLIU
A
B
C
D
IN
OUT
IN
OUT
MAIN B2
OLIU
MAIN B1
OLIU
A
B
C
D
IN
OUT
IN
OUT
MAIN B2
OLIU
MAIN B1
OLIU
A
B
C
D
DS1, DS3, EC-1
RING 2 ACTIVE
MAIN 1
OLIU
MAIN 2
OLIU
A
BC
IN OUT
IN
OUT
RT 4
Ring 2
Ring 1
DS1, DS3, EC-1
Ring 2
Ring 1
rtrv-state-path command
indicates Ring 1 active.
sw-path-sts1 or sw-path-vt1
used to switch path.
MAIN 1
OLIU
MAIN 2
OLIU
A
B
C
IN
OUT
IN
OUT
RT 1
MAIN 1
OLIU
MAIN 2
OLIU
A
B
C
IN OUT
IN
OUT
RT 2
Ring 2
Ring 1
Ring 2
Ring 1
Ring 2
Ring 1
D
Ring 2
Ring 1
D
Ring 2
Ring 1
Ring 2
Ring 1
Ring 2
Ring 1
Ring 2
Ring 1