EasyManua.ls Logo

Lucent DDM-2000 OC-3 - Page 1089

Lucent DDM-2000 OC-3
1224 pages
Print Icon
To Next Page IconTo Next Page
To Next Page IconTo Next Page
To Previous Page IconTo Previous Page
To Previous Page IconTo Previous Page
Loading...
DLP-553: Detailed Level Procedure 363-206-285
Page 17 of 20 Issue 2, February 2000
DDM-2000 OC-3 MULTIPLEXER
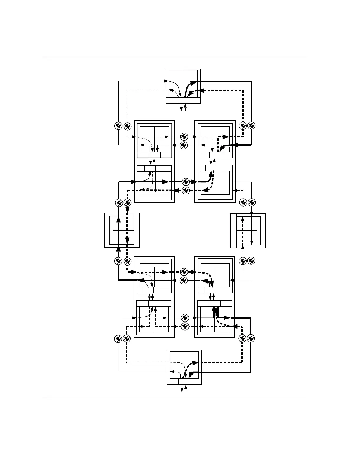
Figure 11 Example of DS3 Transmission Test in Dual Ring Interworking
Network
rtrv-state-path command
indicates Ring 2 active.
sw-path-sts1 or sw-path-vt1
used to switch path.
IN
OUT
IN
OUT
MAIN 2
OLIU
MAIN 1
OLIU
ABC
IN
OUTIN
OUT
MAIN 2
OLIU
MAIN 1
OLIU
AB C
EC-1 EC-1
rtrv-state-path command
indicates Ring 2 active.
sw-path-sts1 or sw-path-vt1
used to switch path.
RING 2 ACTIVE
RING 2 ACTIVE
IN
OUT
IN
OUT
MAIN 2
OLIU
MAIN 1
OLIU
ABC
IN
OUT
IN
OUT
MAIN 2
OLIU
MAIN 1
OLIU
EC-1
EC-1
ABC
CO 3 CO 4
RING 1 ACTIVE
RING 1 ACTIVE
MAIN 2
OLIU
MAIN 1
OLIU
A
BC
IN OUT
IN
OUT
RT 1
RING 1 ACTIVE
Ring 1
Ring 2 Ring 2
Ring 1
CO 1 CO 2
FT-2000 OC-48 line switched ring
RCVR
TRMTR
RCVR
TRMTR
DS1, DS3, EC-1
RING 2 ACTIVE
MAIN 1
OLIU
MAIN 2
OLIU
A
BC
IN OUT
IN
OUT
RT 2
Ring 2
Ring 1
DS1, DS3, EC-1
Ring 2
Ring 1
rtrv-state-path command
indicates Ring 1 active.
sw-path-sts1 or sw-path-vt1
used to switch path.
RCVR
TRMTR
RCVR
TRMTR
TRMTR/RCVR
TRMTR/RCVR
Primary Node
Secondary Node
STS1E
STS1E
RCVR
TRMTR
RCVR
TRMTR
TRMTR/RCVR
Primary Node
STS1E
RCVR
TRMTR
RCVR
TRMTR
TRMTR/RCVR
Secondary Node
STS1E
FAULT-Switch-Path-STS3
command used at the FT-2000
Primary node to perform
manual DRI switch.
rtrv-state-path command
indicates Ring 1 active.
sw-path-sts1 or sw-path-vt1
used to switch path.
FAULT-Switch-Path-STS3
command used at the FT-2000
Primary node to perform
manual DRI switch.
TRMTR/RCVR
RCVR
TRMTR
CO 5
TRMTR/RCVR
RCVR
TRMTR
CO 6
Ring 2
Ring 1
Ring 2
Ring 1
Ring 2
Ring 1
Ring 2
Ring 1
Ring 2
Ring 1
Ring 2
Ring 1
Ring 2
Ring 1
Ring 2
Ring 1
TRMTR RCVR
TRMTR
RCVR