EasyManua.ls Logo

Lucent DDM-2000 OC-3 - Page 1148

Lucent DDM-2000 OC-3
1224 pages
Print Icon
To Next Page IconTo Next Page
To Next Page IconTo Next Page
To Previous Page IconTo Previous Page
To Previous Page IconTo Previous Page
Loading...
DLP-558: Detailed Level Procedure 363-206-285
Page 2 of 8 Issue 2, February 2000
DDM-2000 OC-3 MULTIPLEXER
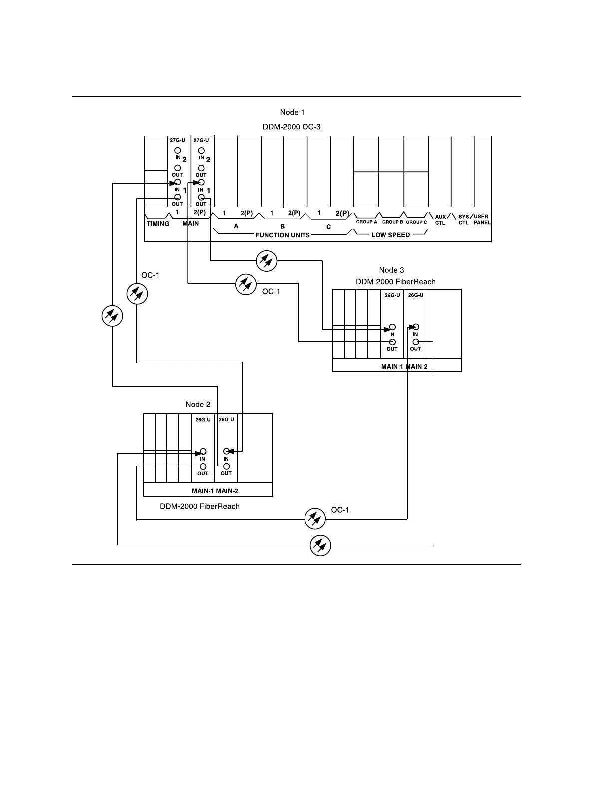
Figure 1 Sample Network Schematic
Log in to any node in the ring and use the rtrv-map-network: and/or
rtrv-map-neighbor: command to retrieve a map of the network which lists
all the systems and how they are connected to each other.
Sample output reports are shown in Figures 2, 3, and 4: