EasyManua.ls Logo

Lucent DDM-2000 OC-3 - Page 245

Lucent DDM-2000 OC-3
1224 pages
Print Icon
To Next Page IconTo Next Page
To Next Page IconTo Next Page
To Previous Page IconTo Previous Page
To Previous Page IconTo Previous Page
Loading...
NTP-025: Circuit Order 363-206-285
Page 5 of 8 Issue 2, February 2000
DDM-2000 OC-3 MULTIPLEXER
DO ITEMS BELOW IN ORDER LISTED. . . . . FOR DETAILS, GO TO
25. At the starting OC-3 NODE (NODE 5, OC-3), test protection
switching and optical fiber integrity by disconnecting and
reconnecting, one at a time, the MAIN 1 and MAIN 2(P) OLIU
fiber connections. Wait until alarms clear between disconnecting
the fibers.
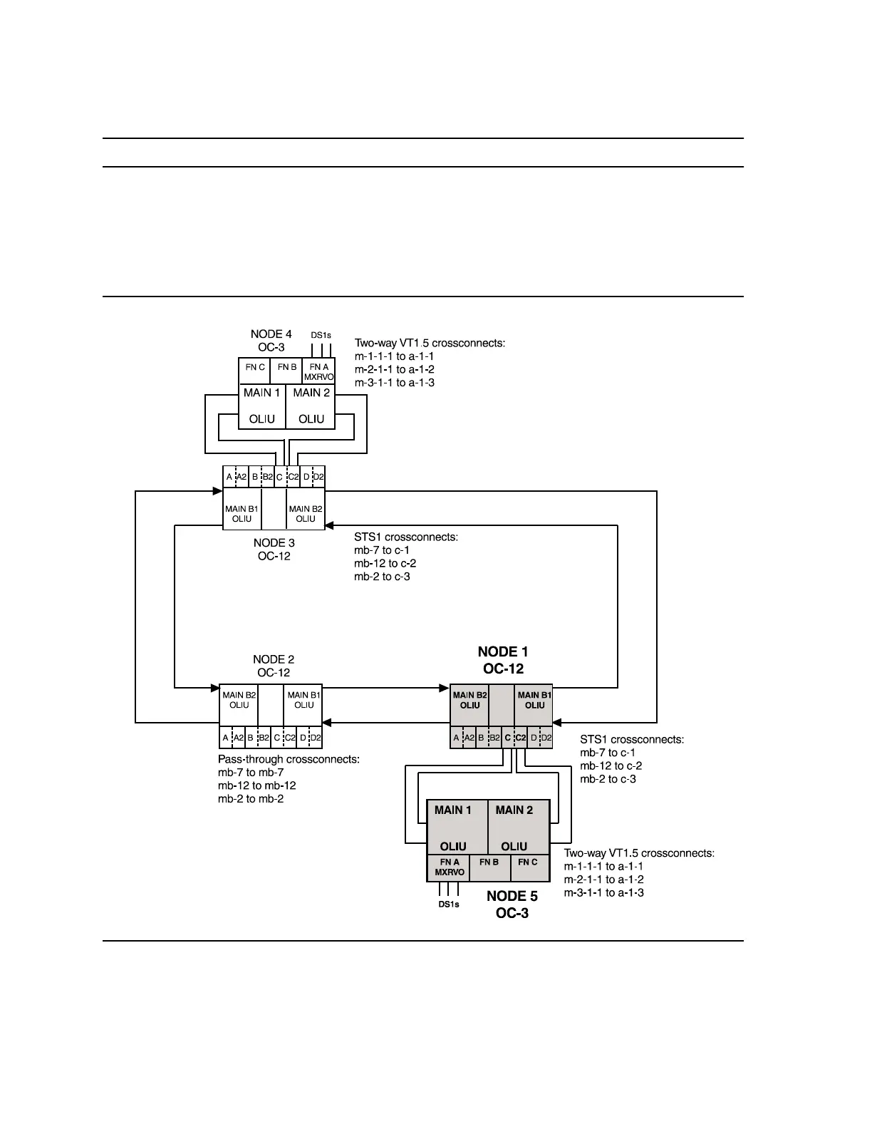
Figure 1 Basic 3-Node OC-12 Ring for Ring Upgrade