EasyManua.ls Logo

Lux Tools SWA-600 - Page 2

Lux Tools SWA-600
Print Icon
To Next Page IconTo Next Page
To Next Page IconTo Next Page
To Previous Page IconTo Previous Page
To Previous Page IconTo Previous Page
Loading...
2
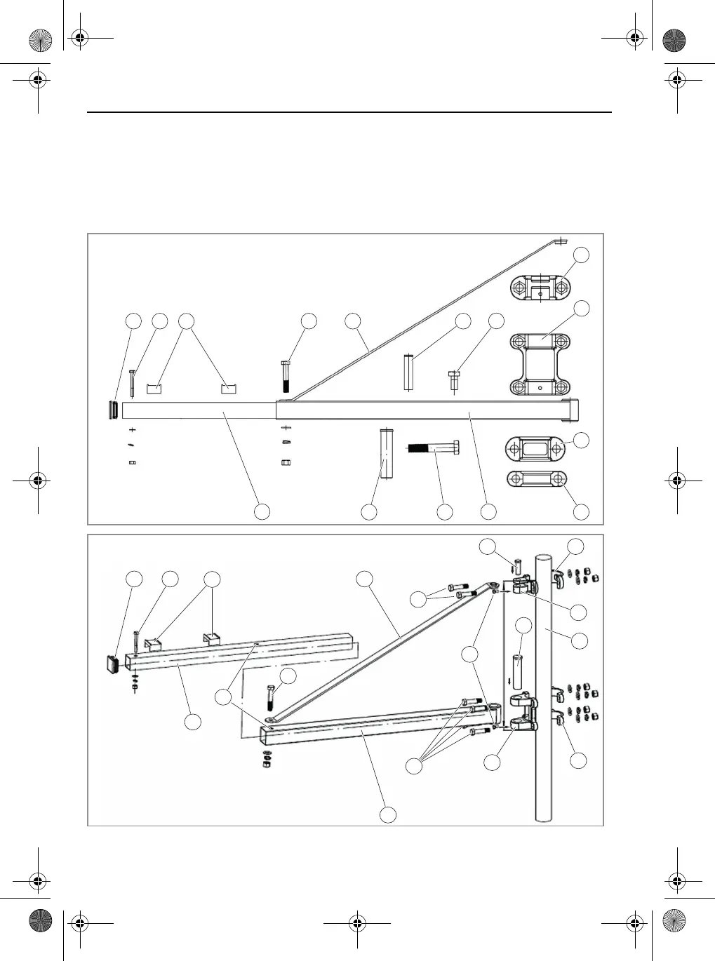
Montage
Montaggio
Assembly
Montáž
Montaż
Szerelés
Montaža
Montaj
Монтаж
Συναρμολόγηση
Montāža
Monteerimine
17
1 2
3
4
5
6
7
13
10
11
12
9
8
14
1
ø 48
480 mm
15
17
1 2
3
4
5
14
7
13
11
12
9
86
13
16
10
2
Schwenkarm_389825.book Seite 2 Montag, 7. September 2015 3:59 15