EasyManua.ls Logo

Manitou MRT 1850 - Page 82

Manitou MRT 1850
206 pages
Print Icon
To Next Page IconTo Next Page
To Next Page IconTo Next Page
To Previous Page IconTo Previous Page
To Previous Page IconTo Previous Page
Loading...
6
3
IT
MRT 1850 - 2150 - 2540
2
30
280
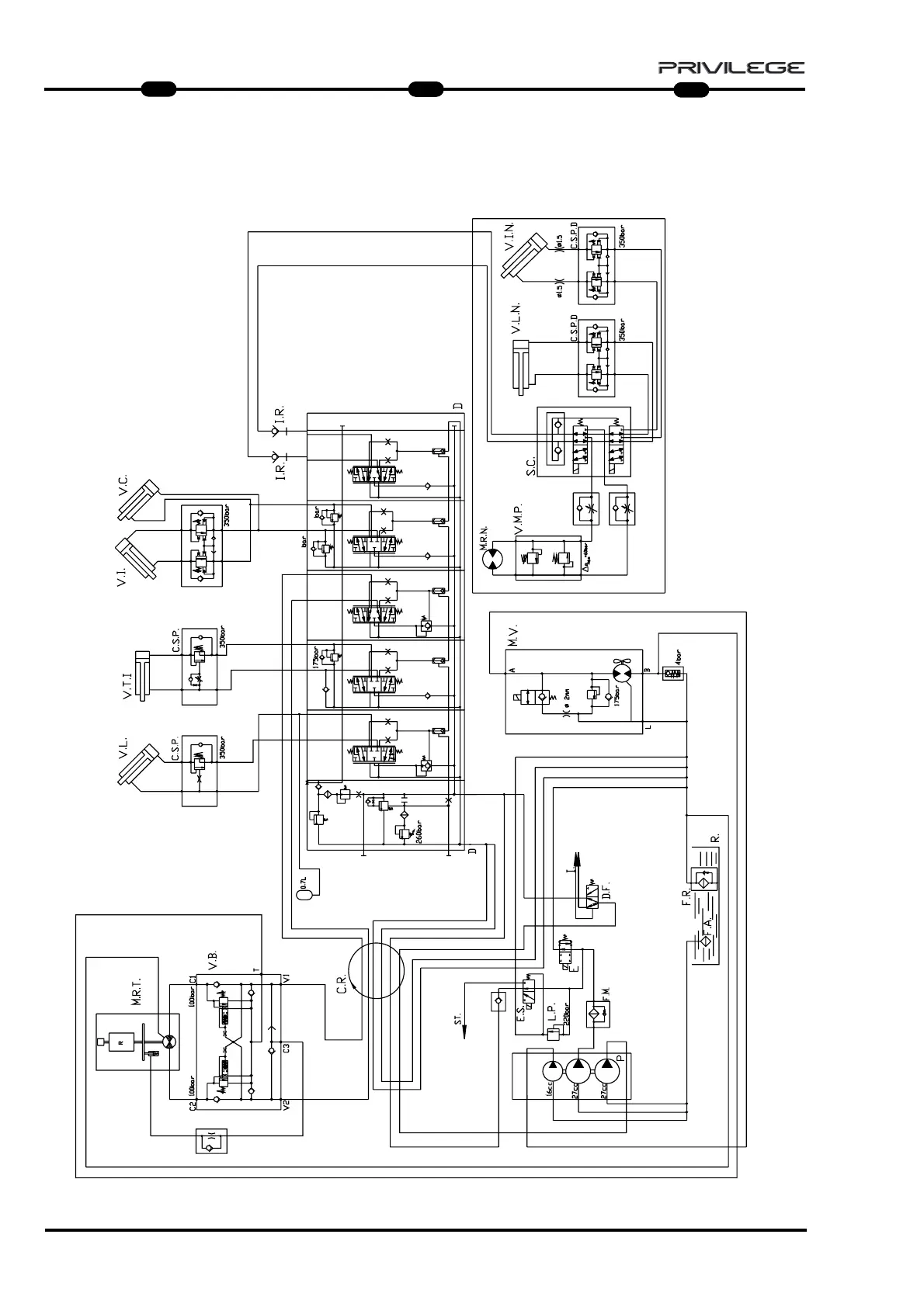
SCHEMA IDRAULICO
CESTELLO PENDOLO
ROTANTE
EN
DE
ROTATING SWINGING
BASKET HYDRAULIC
SYSTEM DIAGRAM
HYDRAULIC SCHEMA DREH-
BARER PENDELKORB

Related product manuals