EasyManua.ls Logo

Mark GSE series - Page 12

Mark GSE series
40 pages
Print Icon
To Next Page IconTo Next Page
To Next Page IconTo Next Page
To Previous Page IconTo Previous Page
To Previous Page IconTo Previous Page
Loading...
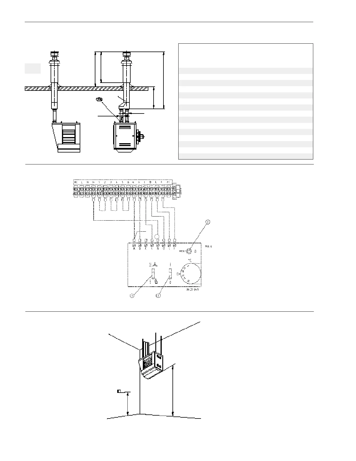
1.3
1.3.7
1.3.9
GSE
øD
DU
H1
H
H3
H2
øD
øD
1,5 m
F>
T øD DU H H1 H2 H3
mm mm mm mm mm mm
18 80 126 1028 1078 1570 492
21 80 126 1028 1078 1570 492
24 80 126 1028 1078 1570 492
28 80 126 1028 1078 1570 492
33 80 126 1028 1078 1570 492
37 80 126 1028 1078 1570 492
44 80 126 1028 1078 1570 492
49 80 126 1028 1078 1570 554
55 100 151 1016 1096 1570 554
59 100 151 1016 1096 1570 554
66 100 151 1016 1096 1570 554
74 100 151 1016 1096 1570 554
88 100 151 1016 1096 1570 554
98 100 151 1016 1096 1570 554
104 100 151 1016 1096 1570 554
1.3.8
12
06 29 048
3