EasyManua.ls Logo

Mark GSE series - Page 25

Mark GSE series
40 pages
Print Icon
To Next Page IconTo Next Page
To Next Page IconTo Next Page
To Previous Page IconTo Previous Page
To Previous Page IconTo Previous Page
Loading...
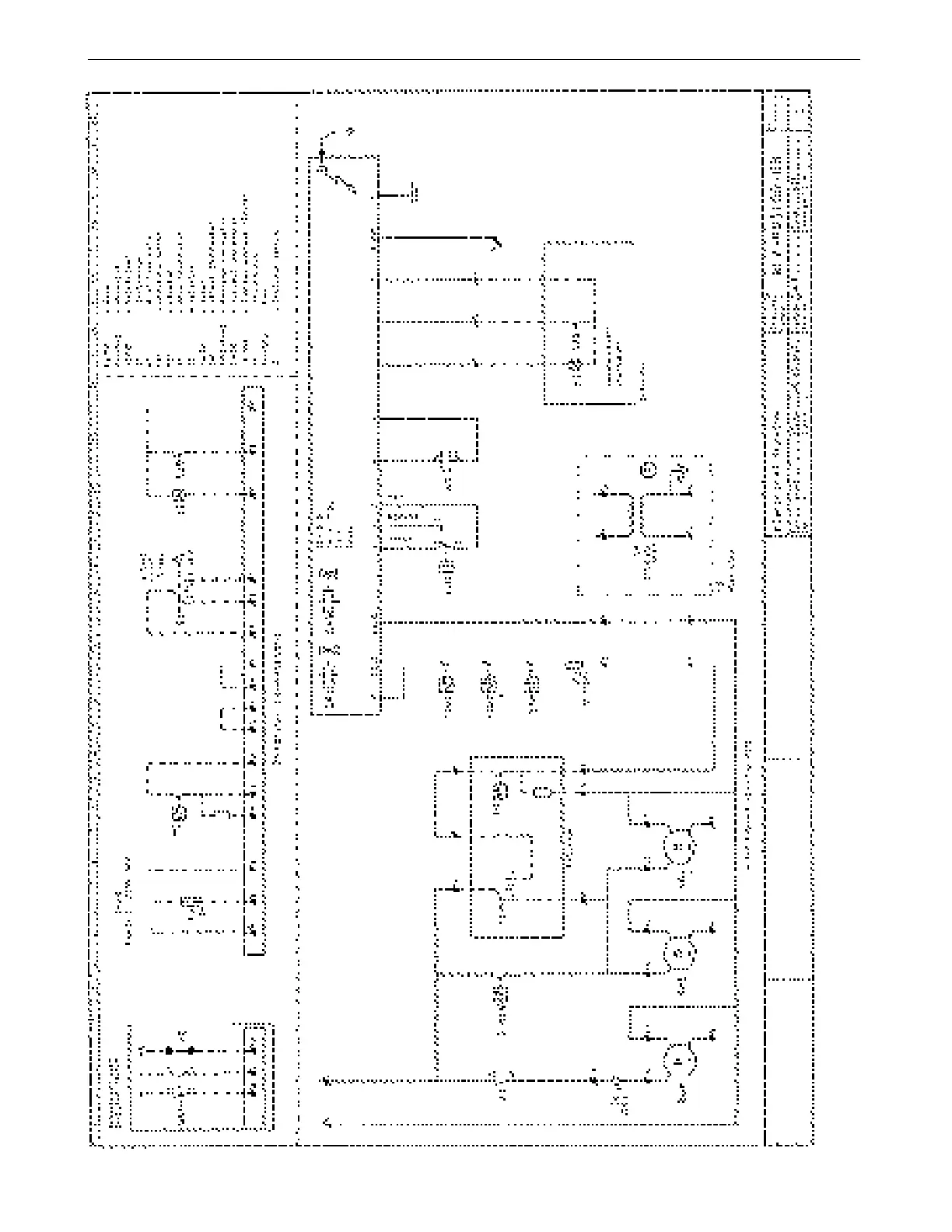
Electrical diagramm (GSE) 1.5
25