EasyManua.ls Logo

Master audio JK26 - Page 31

Default Icon
35 pages
Print Icon
To Next Page IconTo Next Page
To Next Page IconTo Next Page
To Previous Page IconTo Previous Page
To Previous Page IconTo Previous Page
Loading...
Master Audio
Joker Series (Passive). Version 1.4 Jan14 31
JK26 JK10 JK12 JK15
Volado horizontal
2&5 o 3&6 o 9&10 o 11&12 (puntos volado frontales)
1&4 o 7&8 (puntos traseros para angular)
Volado vertical
2&3 o 5&6 o 9&11 o 10&12 (puntos volado frontales)
1 o 4 o 7 o 8 (puntos traseros para angular)
Como accesorio opcional de volado se suministran anillas rigging de M8 (ACR M8).
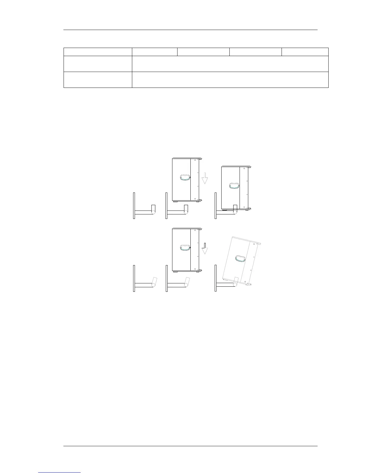
3.7.3. Volado vertical de la JK26, JK10, JK12, JK15 mediante soporte de pared
SP35
Estos modelos pueden colgarse verticalmente en pared mediante el accesorio SP35.
El SP35 es un soporte articulado con vaso de 35mm de diámetro.
Fig.20. Soporte SP35
Colgado:
1- Sitúe el soporte cerca de la pared donde vaya a colgar la caja y marque la
localización de los puntos de soporte
2- Realice los taladros en la pared y cuelgue el soporte con tornillería adecuada y de
alta resistencia
3- Coloque la caja en el vaso articulado y gradúe el ángulo deseado
3.7.4. Volado vertical de la JK26, JK10, JK12 y JK15 mediante barra “HR”
Use la barra HR26 para la JK26
Use la barra HR10 para la JK10
Use la barra HR1215 para la JK12
Use la barra HR1215 para la JK15

Related product manuals