EasyManua.ls Logo

Master CT 50 P - Page 9

Master CT 50 P
Print Icon
To Next Page IconTo Next Page
To Next Page IconTo Next Page
To Previous Page IconTo Previous Page
To Previous Page IconTo Previous Page
Loading...
Tabulka č. 2. TECHNICKÉ ÚDAJE
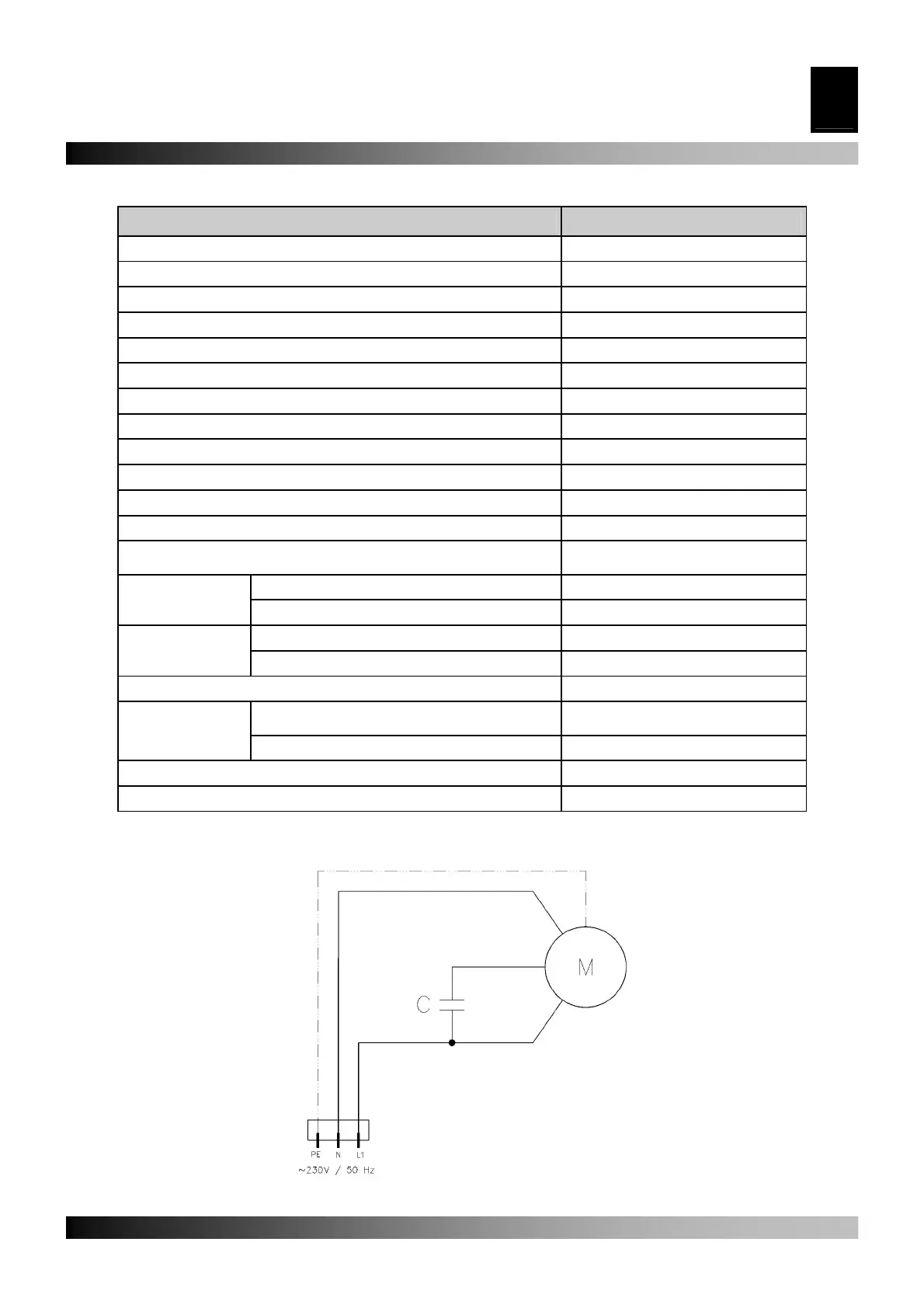
C-kondenzátor, M-motor.
KAMNA NA PEVNÁ PALIVA
CT 50 P
CZ
4
CT50P
Jmenovitý tepelný výkon brutto
50,0 kW
Jmenovitý tepelný výkon netto
30,2kW
Průtok vzduchu
1200 m
3
/h
Tlak vzduchu
40 Pa
Nepřetržité hoření při jmenovitém výkonu
1,00 h
Doba hoření při redukovaném výkonu
5,0 h
Jednorázové naložení paliva (dřeva)
~15,0 kg
Účinnost při jmenovitém výkonu
60,74%
Emise CO (13% O
2
)
0,5%
38,89 [g/s]
Průměrná teplota spalin 360°
°°
°C
Vzdálenost hořlavých předmětů od zařízení
1,50 m
Vzdálenost hořlavých předmětů na straně výstupu teplého vzduchu
ze zařízení
2,00 m
- při jmenovitém výkonu
12 Pa
Komínový tah:
- při redukovaném zatížení
6 Pa
(šíř. x výš. x hloub.)
1315 x 1190 x 775 mm
Rozměry:
průměr vývodu spalin φ
φφ
φ
z
148 mm
Hmotnost kamen:
302 kg
- druh
Polena listnatých stromů - buku,
habru, dubu, olše, břízy apod.
Palivo:
- vlhkost <
<<
< 20%
Jmenovité napě
230V ~50Hz
Jmenovitý proud
0,6 A

Related product manuals