EasyManua.ls Logo

Mastercare Integrity MB-80R - Page 3

Mastercare Integrity MB-80R
8 pages
Print Icon
To Next Page IconTo Next Page
To Next Page IconTo Next Page
To Previous Page IconTo Previous Page
To Previous Page IconTo Previous Page
Loading...
Integrity)Bath)Model&MB-80R&Installation&Manual&
01-23-19
Page 3 of 8
450 East 32nd Street - PO Box 1022 68026)
Fremont NE 68025
800-798-5867 FAX: 402-563-9102
www.mastercarebath.com
IMPORTANT SAFETY INSTRUCTIONS READ AND
FOLLOW ALL INSTRUCTIONS THROUGHLY
CAUTION: The caution heading identifies important
maintenance and operation information. Failure to obey a
caution warning may result in damage to the Entree Bath and
may void the warranty
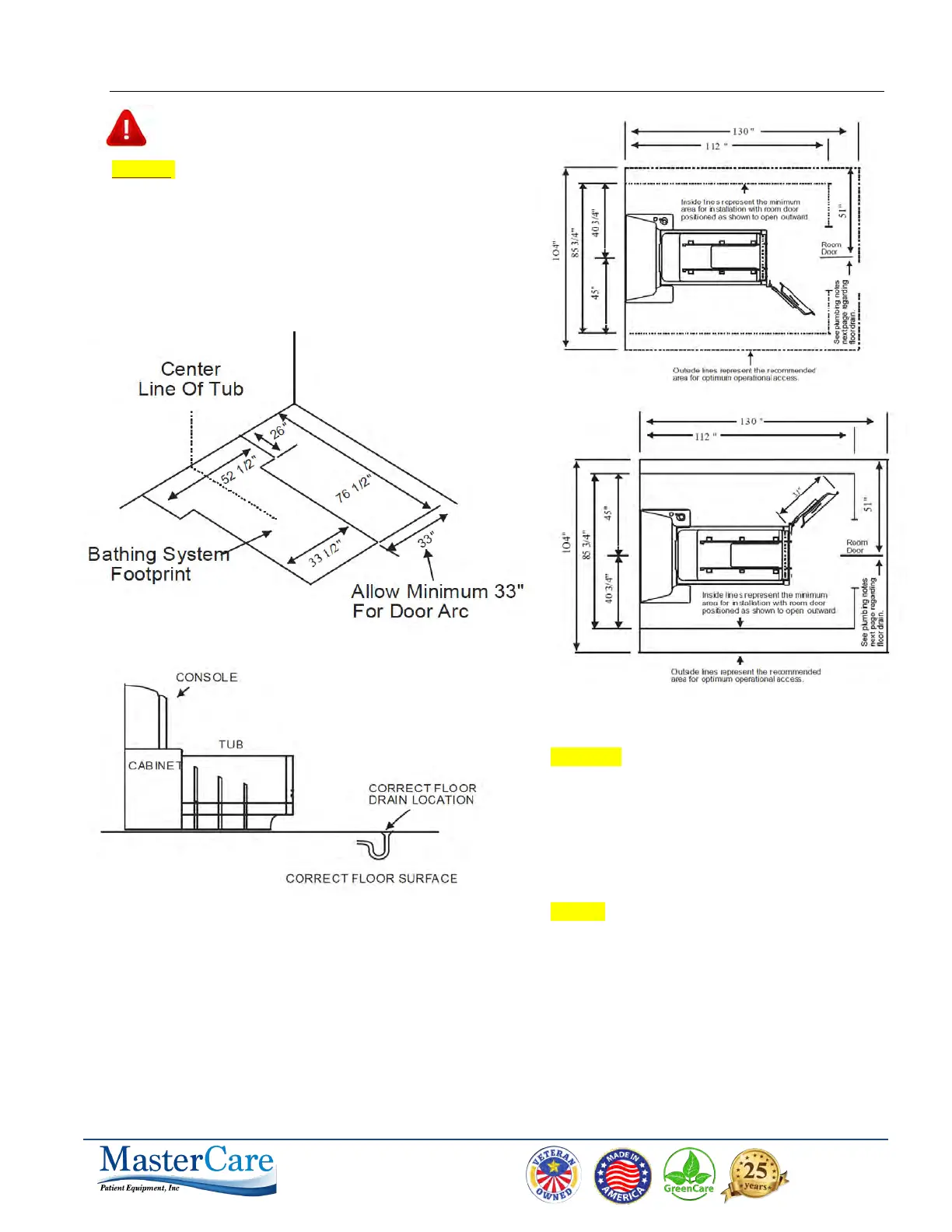
1. Plan Bathing System Layout
2. Mark Tub Center Line On Wall & Floor
WARNING:
Choose flattest floor location.
Make sure sufficient room is provided to allow
unobstructed area for transfer in and out of t
he
tub with the transfer system.
Room dimensions, door sizes and floor drain
placement, must comply with all applicable
building and health codes.
Caution:
Tub placement is critical for door opening and
access to disinfectant and dispensing both
sides.
Space around system is needed to allow
assistant to access resident, disinfectant &
dispensing systems and maintain both sides.
Avoid covering switches, valves and other items
that
must be accessed by authorized personnel or
maintenance.

Related product manuals