EasyManua.ls Logo

MAZ 631236 - Page 85

Default Icon
99 pages
Print Icon
To Next Page IconTo Next Page
To Next Page IconTo Next Page
To Previous Page IconTo Previous Page
To Previous Page IconTo Previous Page
Loading...
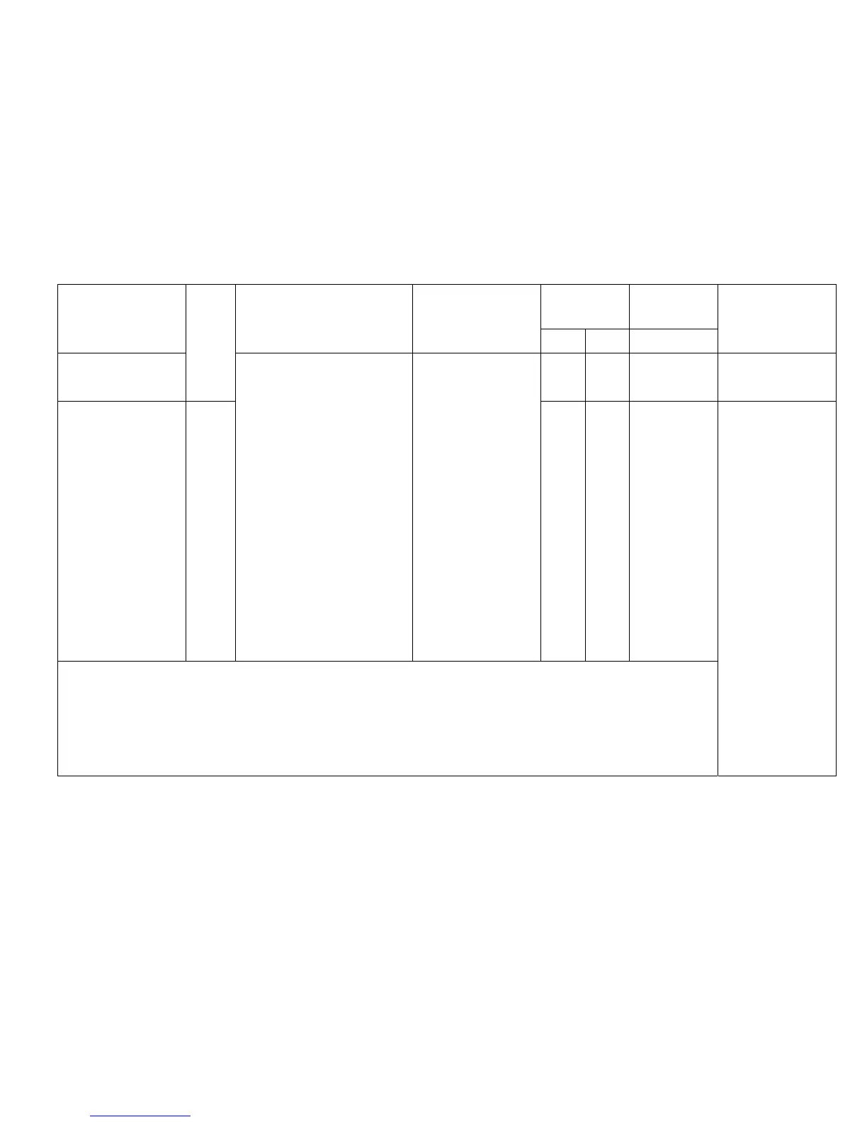
Amount of
lubricant
Renewal (adding)
interval
Lubrication (filling) point
Number
of
lubricati
on
(filling)
points
Main makes,
Application season
Foreign analogues (brand,
specification, company)
filling
rating
total for a
truck
Main make
Lubrication (oil filling,
change) instructions
Rate of drain
(accumulation) of used
oil
13 Hydraulic jack ДГ 12 1 0,4 l 0,4 l Change oil at repair, fill it
up to the filler hole level
Drain rate – 0,3 l
14 Cabin lift system 1
Hydraulic oil ВМГЗ (VMGZ) (МГ-15-В) (MG-
15V) or ВМГЗ-С (VMGZ-C)) ( МГ-15-В(с))
( МG-15-V(с))
MIL-H-6083D(USA) OX-15
under DID-5540 (Eng.)
Shell company: Tellus 21
Aeroshell Fluid 7
Esso company:
Esso Univis j 43,
Esso Univis 40
Mobil Oil company;
Mobil Fluid 93
0,9 l 0,9 l 2С
Note: under points 8-11 oils of marks «Р», «А», «АУ» at ambient air temperature below minus 30
0
С and «И-20А», «И-30А», «А» -2005 at ambient air
temperature below minus 20
0
С to be replaced by oils «ВМГЗ» (“VMGZ”) or «ВМГЗ-С» (“VMGZ-C”) ТУ (spec.)38 101479-85 or «МГЕ-10А» (“MGE-10A”)
Change oil, if necessary,
for doing this:
1.Unscrew the filler neck
plug
2.Disconnect the upper
hose of the hydraulic
cylinder from the adapter
and lift the cabin at full
angle, at the same time used
oil will drain from the
disconnected hose. For full
cabin lifting, if necessary,
fill up fresh filtered oil into
the pump.
3.Connect the upper hose
to the adapter.
4. Disconnect the lower
hose of the hydraulic
cylinder from the adapter
and lower the cabin, adding
up, if necessary, fresh oil
into the pump, at the same
time used oil will drain
from the disconnected
hose.
5. Connect the lower hose
to the adapter.
6. Make the level of oil
reach the lower edge of the
filler neck.
7.Screw tight the filler
neck plug