EasyManua.ls Logo

MCC EM-1 - Page 18

MCC EM-1
74 pages
Print Icon
To Next Page IconTo Next Page
To Next Page IconTo Next Page
To Previous Page IconTo Previous Page
To Previous Page IconTo Previous Page
Loading...
1-- 9
© 2012 Mobile Climate Control T-299 Rev. 08/2012
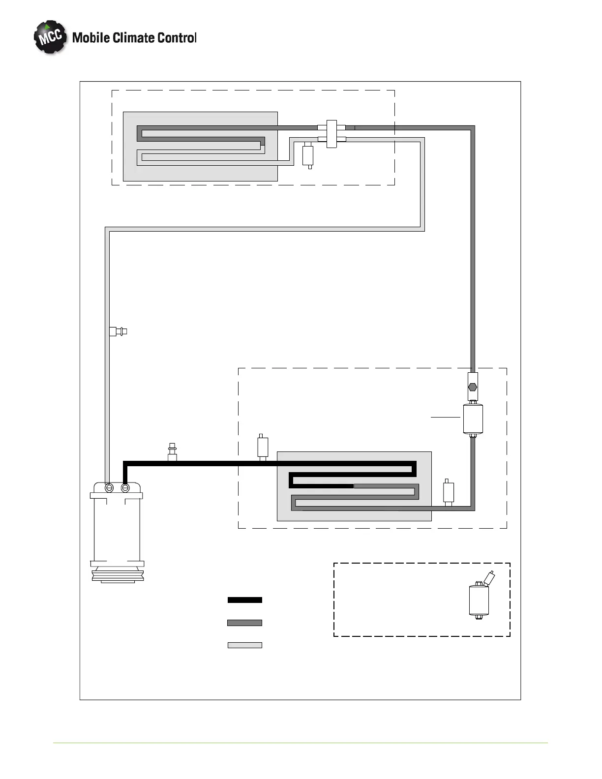
TXV
EVAPORATOR COIL
CONDENSER COIL
FILTER DRYER
OR
RECEIVER DRIER
SIGHT GLASS
SUCTION ACCESS PORT
(GEN 5
Location)
HPS
LPS
DISCHARGE
ACCESS PORT
COMPRESSOR
LPS
(GEN 5 Location)
(GEN 4
Location)
DISCHARGE LINE
SUCTION LINE
LIQUID LINE
DISCHARGE LINE
LIQUID LINE
SUCTION LINE
EVAPORATOR ASSEMBLY
CONDENSER ASSEMBLY
NOTE:
MICRO--CHANNEL
CONDENSER HPS IS LO-
CATED ON RECEIVER --DRIER
Figure 1-10 Air Conditioning Refrigerant Flow Diagram - Small Split System

Related product manuals