EasyManua.ls Logo

MCC EM-1 - Gen V with EnviroMATE Controller (Single Zone) Schematic

MCC EM-1
74 pages
Print Icon
To Next Page IconTo Next Page
To Next Page IconTo Next Page
To Previous Page IconTo Previous Page
To Previous Page IconTo Previous Page
Loading...
5-- 10
© 2012 Mobile Climate Control
T-299 Rev. 08/2012
98--63049 Rev. B
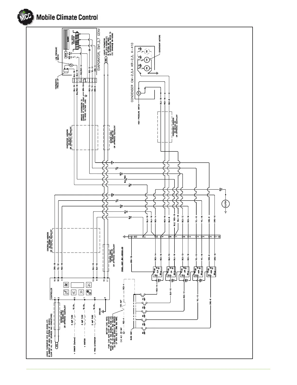
Figure 5-10 Gen V with EnviroMATE Controller (Single Zone)

Related product manuals