EasyManua.ls Logo

McQuay MMC100BR - Page 71

McQuay MMC100BR
163 pages
Print Icon
To Next Page IconTo Next Page
To Next Page IconTo Next Page
To Previous Page IconTo Previous Page
To Previous Page IconTo Previous Page
Loading...
70
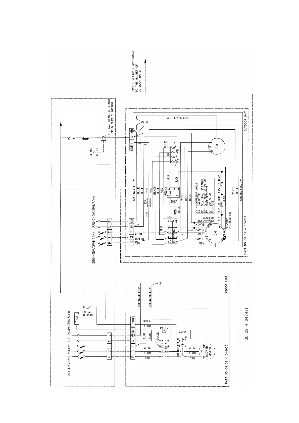
MODEL : INDOOR - MDB 750B5 (WITH MAGNETIC CONTACTOR)
OUTDOOR – MMC 150C x 5
INDOOR
AUXILLARY
C1
C1

Related product manuals