EasyManua.ls Logo

McQuay MMC100BR - Page 73

McQuay MMC100BR
163 pages
Print Icon
To Next Page IconTo Next Page
To Next Page IconTo Next Page
To Previous Page IconTo Previous Page
To Previous Page IconTo Previous Page
Loading...
72
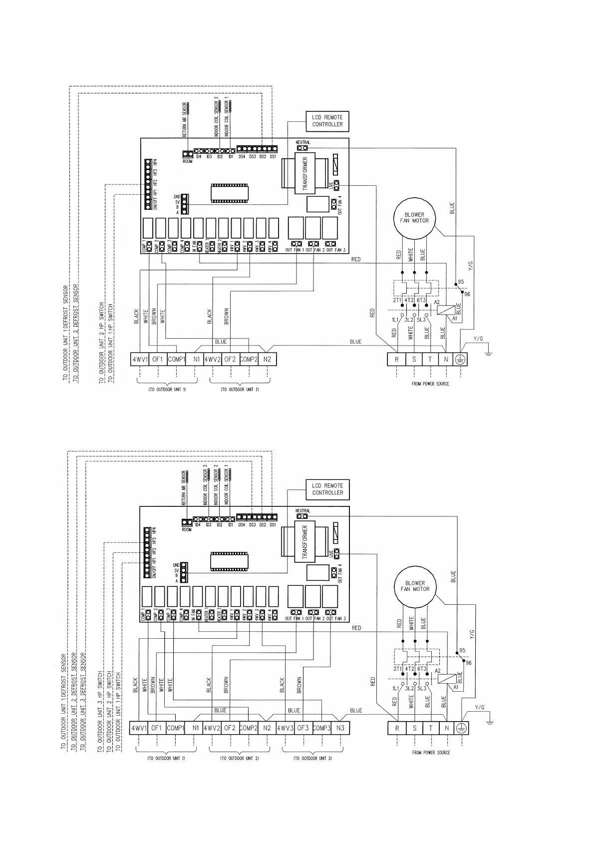
MODEL : MDB 150/ 200/ 250 BR2 (EXPORT)
MODEL : MDB 300/ 350 BR3 (EXPORT)

Related product manuals