EasyManua.ls Logo

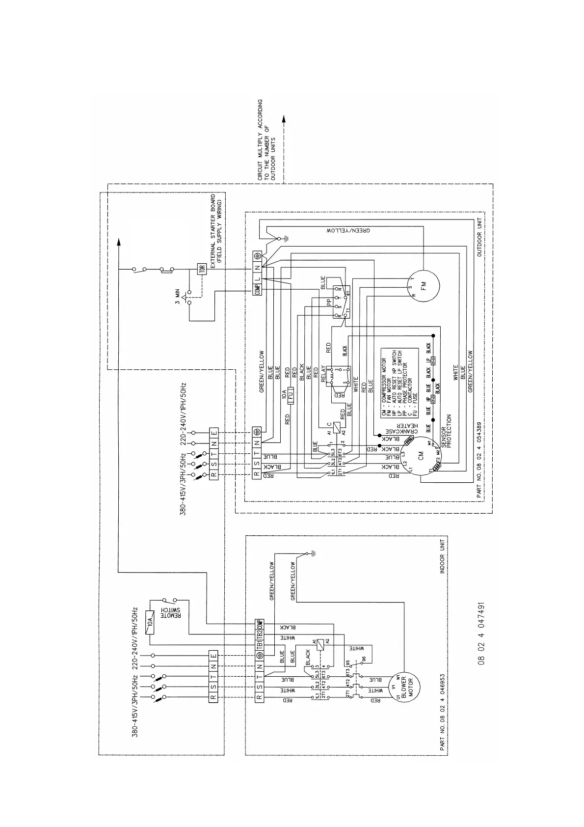
McQuay MMC125BR - Wiring Diagrams (Heatpump); INDOOR (EXPORT) MDB 075;100 BR (C3.0 B)

McQuay MMC125BR
163 pages
Print Icon
To Next Page IconTo Next Page
To Next Page IconTo Next Page
To Previous Page IconTo Previous Page
To Previous Page IconTo Previous Page
Loading...
70
MODEL : INDOOR - MDB 750B5 (WITH MAGNETIC CONTACTOR)
OUTDOOR – MMC 150C x 5
INDOOR
AUXILLARY
C1
C1

Related product manuals