EasyManua.ls Logo

Midea CE-HRV-1500

Midea CE-HRV-1500
33 pages
To Next Page IconTo Next Page
To Next Page IconTo Next Page
To Previous Page IconTo Previous Page
To Previous Page IconTo Previous Page
Loading...
Dimension MCAC-KTSM-2009-03
8 Heat Recovery Ventilation
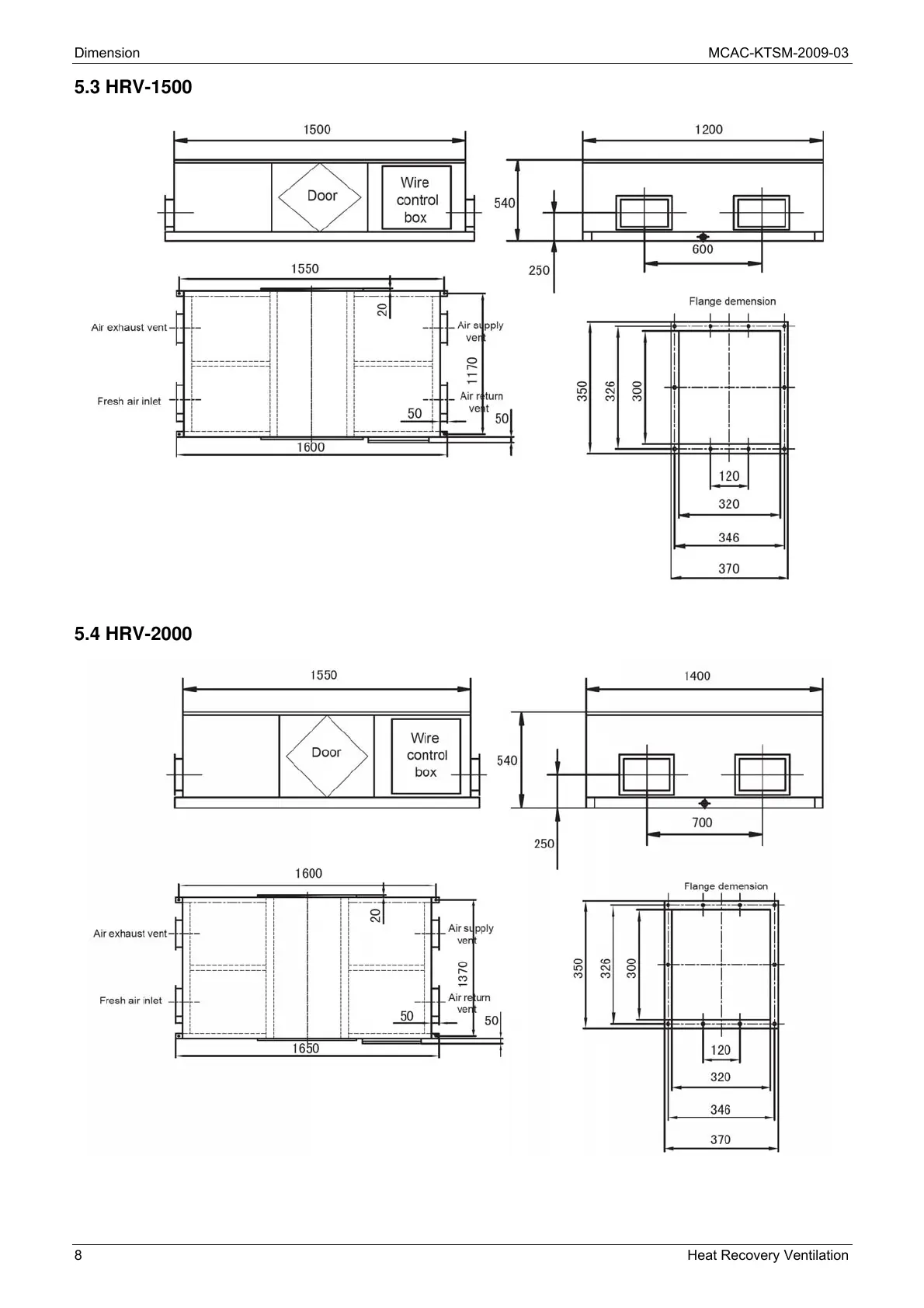
5.3 HRV-1500
5.4 HRV-2000

Related product manuals