EasyManua.ls Logo

Midea CE-HRV-2000 - Page 11

Midea CE-HRV-2000
33 pages
Print Icon
To Next Page IconTo Next Page
To Next Page IconTo Next Page
To Previous Page IconTo Previous Page
To Previous Page IconTo Previous Page
Loading...
Dimension MCAC-KTSM-2009-03
8 Heat Recovery Ventilation
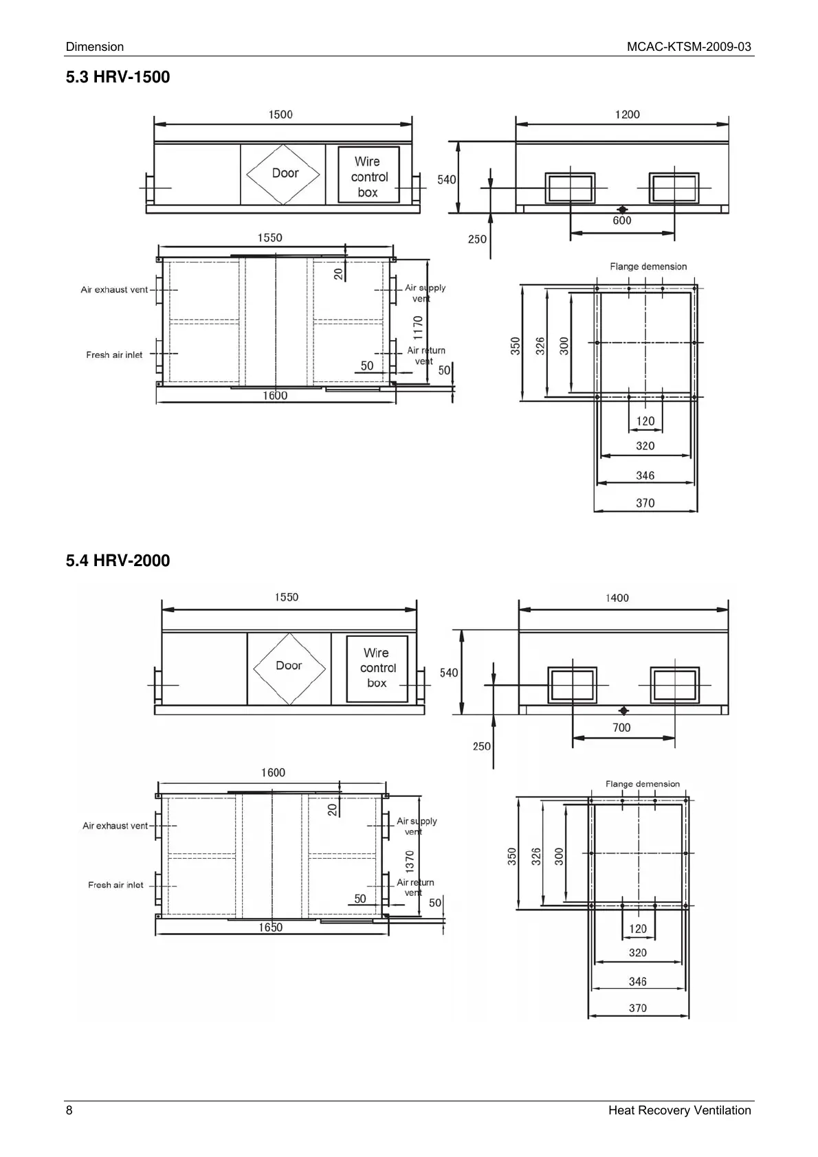
5.3 HRV-1500
5.4 HRV-2000

Related product manuals