EasyManua.ls Logo

Midea EL-KFR90GW/Y-A(B) - Outdoor Unit Dimensions

Midea EL-KFR90GW/Y-A(B)
42 pages
To Next Page IconTo Next Page
To Next Page IconTo Next Page
To Previous Page IconTo Previous Page
To Previous Page IconTo Previous Page
Loading...
GD Midea Refrigerant Equipment Co. Ltd Service manual for Electrolux split Series
4
For Size D indoor unit:
150 or more to the ceiling
Hooked Part
Indoor Unit Outline
Hooked Part
Left Pipe
hole D95
120mm or more to
the wall
432
58
465
465
11 5
50
Rig ht pipe
hole D95
5850
11 5
Hooked Part
432
1080
120mm or more to
the wall
108
22
For Size E indoor unit:
150mm or more to the ceiling
1250
81 5
257
178
Ho oked Part
Hooker Part
120mm or more
to the wall
120mm or more
to the wall
325
55
55
55
58
Left pipe
hole D95
R
i
g
h
t
p
i
p
e
h
o
l
e
D
9
5
I
n
d
o
o
r
u
n
i
t
o
u
t
l
i
n
e
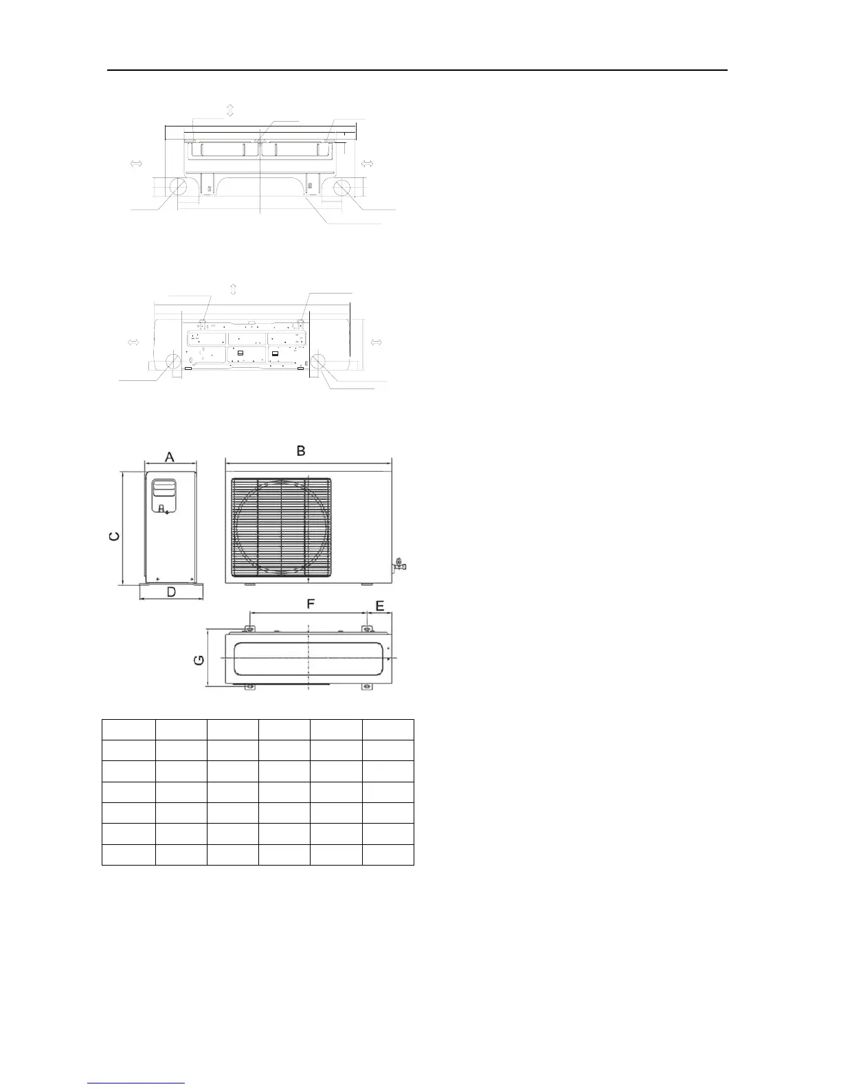
1.5.3 Outdoor units:
A: Depth (mm) B: Width (mm) C: Height (mm)
Unit Size F Size G Size H Size I Size J
A(mm) 235 250 285 335 330
B(mm) 700 780 760 845 895
C(mm) 535 540 590 695 860
D(mm) 275 298 315 360 355
E(mm) 120 114.5 110 140 141.3
F(mm) 458 549 530 560 589.6
Size F outdoor units:
EL-KF20GW/N2Y-A(B) EL-KFR20GW/N2Y-A(B)
EL-KF26GW/N2Y-A(B) EL-KFR26GW/N2Y-A(B)
EL-KFR20GW/N1Y-A(B)
EL-KF20GW/Y-A(B) EL-KFR20GW/Y-A(B)
EL-KF26GW/Y-A(B) EL-KFR26GW/Y-A(B)
EL1-KF20GW/Y-A(B) EL1-KFR20GW/Y-A(B)
EL1-KF26GW/Y-A(B) EL1-KFR26GW/Y-A(B)
EL1-KF20GW/N2Y-A(B) EL1-KFR20GW/N2Y-A(B)
EL1-KF26GW/N2Y-A(B) EL1-KFR26GW/N2Y-A(B)
SEL-KF20GW/Y-A(B) SEL-KFR20GW/Y-A(B)
SEL-KF26GW/Y-A(B) SEL-KFR26GW/Y-A(B)
Size G outdoor units:
EL-KFR26GW/N1Y-A(B) EL-KFR36GW/N1Y-A(B)
EL-KF32GW/Y-A(B) EL-KFR32GW/Y-A(B)
EL-KF36GW/Y-A(B) EL-KFR36GW/Y-A(B)
EL1-KF32GW/Y-A(B) EL1-KFR32GW/Y-A(B)
EL1-KF35GW/N2Y-A(B) EL1-KFR35GW/N2Y-A(B)
SEL-KF32GW/Y-A(B) SEL-KFR32GW/Y-A(B)
SEL1-KF26GW/Y-A(B) SEL1-KFR26GW/Y-A(B)
Size H outdoor units:
EL-KF36GW/N2Y-A(B) EL-KFR36GW/N2Y-A(B)
SEL1-KF36GW/Y-A(B) SEL1-KFR36GW/Y-A(B)
Size I outdoor units:
EL-KF50GW/N2Y-A(B) EL-KFR50GW/N2Y-A(B)
EL-KF61GW/N2Y-A(B) EL-KFR61GW/N2Y-A(B)
EL-KF70GW/N2Y-A(B) EL-KFR70GW/N2Y-A(B)
EL-KF50GW/Y-A(B) EL-KFR50GW/Y-A(B)
EL-KF61GW/Y-A(B) EL-KFR61GW/Y-A(B)
EL-KF70GW/Y-A(B) EL-KFR70GW/Y-A(B)
AU-KF61GW/Y-A(B) AU-KFR61GW/Y-A(B)
AU-KF70GW/Y-A(B) AU-KFR70GW/Y-A(B)
EL-KT3F53GW/Y-T2
EL-KT3F53GW/Y-T1 EL-KT3FR53GW/Y-T1
EL-KT3F70GW/Y-T1 EL-KT3FR70GW/Y-T1
SEL-KF53GW/Y-A(B) SEL-KFR53GW/Y-A(B)
SEL-KF61GW/Y-A(B) SEL-KFR61GW/Y-A(B)
SEL-KF70GW/Y-A(B) SEL-KFR70GW/Y-A(B)
Size J outdoor units:
EL-KF90GW/Y-A(B) EL-KFR90GW/Y-A(B)
EL-KF90GW/SY-A(B) EL-KFR90GW/SY-A(B)
AU-KF85GW/Y-A(B) AU-KFR85GW/Y-A(B)
EL-KT3F70GW/Y-T2

Related product manuals