EasyManua.ls Logo

Midea HRV-1000 - Page 11

Midea HRV-1000
33 pages
Print Icon
To Next Page IconTo Next Page
To Next Page IconTo Next Page
To Previous Page IconTo Previous Page
To Previous Page IconTo Previous Page
Loading...
Dimension MCAC-KTSM-2009-03
8 Heat Recovery Ventilation
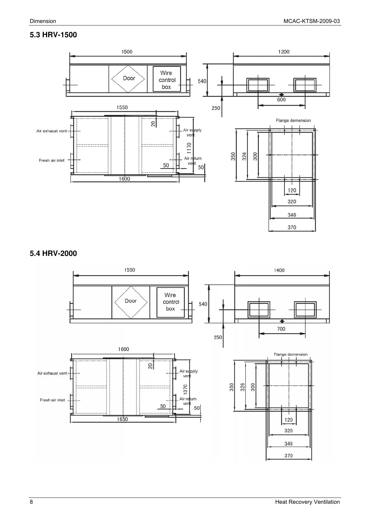
5.3 HRV-1500
5.4 HRV-2000

Other manuals for Midea HRV-1000

Related product manuals