EasyManua.ls Logo

Midea MCD-24HRFN1-M(C) - Page 38

Midea MCD-24HRFN1-M(C)
247 pages
Print Icon
To Next Page IconTo Next Page
To Next Page IconTo Next Page
To Previous Page IconTo Previous Page
To Previous Page IconTo Previous Page
Loading...
35
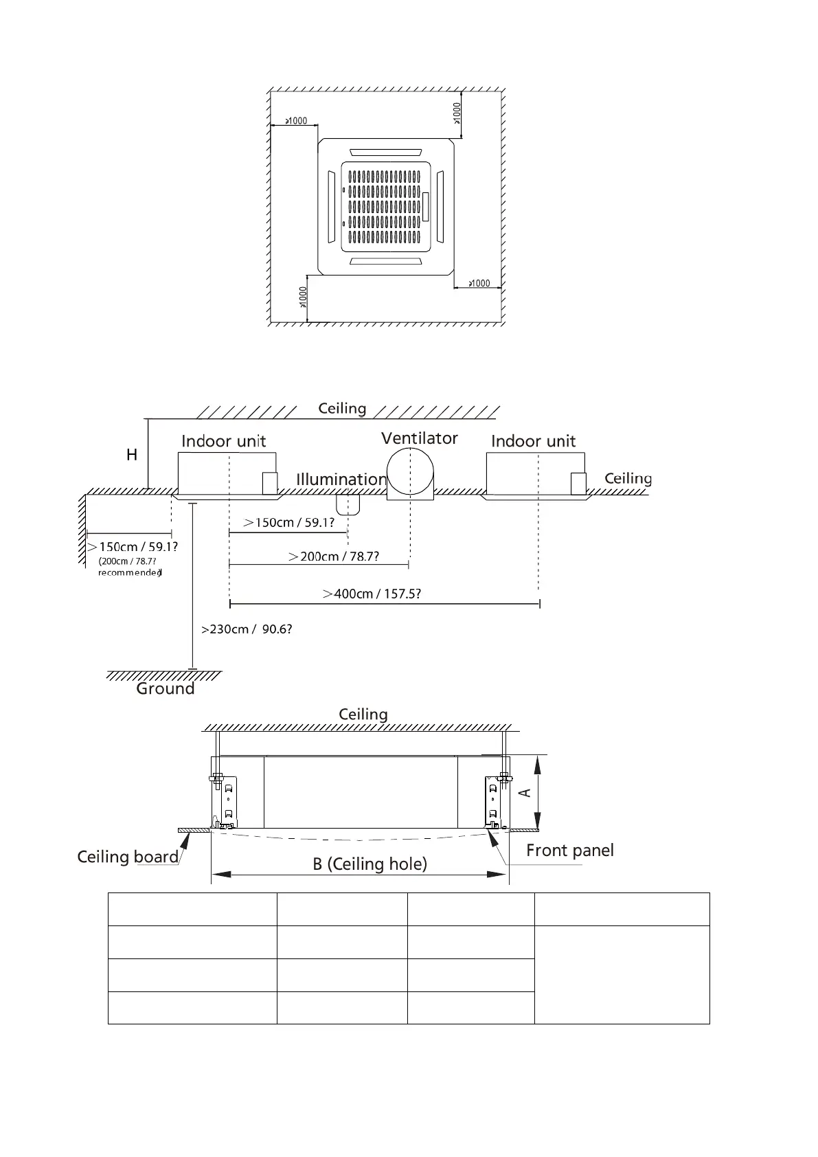
New Cassette Units
Capacity (kBtu/h)
A(mm/inch)
H(mm/inch)
B(mm/inch)
24
204/8.03
>230/9.06
900/35.4
36
245/9.65
>271/10.7
48
287/11.3
>313/12.3

Table of Contents

Related product manuals