EasyManua.ls Logo

Midea MKT3-V800 - Page 10

Midea MKT3-V800
21 pages
Print Icon
To Next Page IconTo Next Page
To Next Page IconTo Next Page
To Previous Page IconTo Previous Page
To Previous Page IconTo Previous Page
Loading...
8
Owner’s & Installation manual
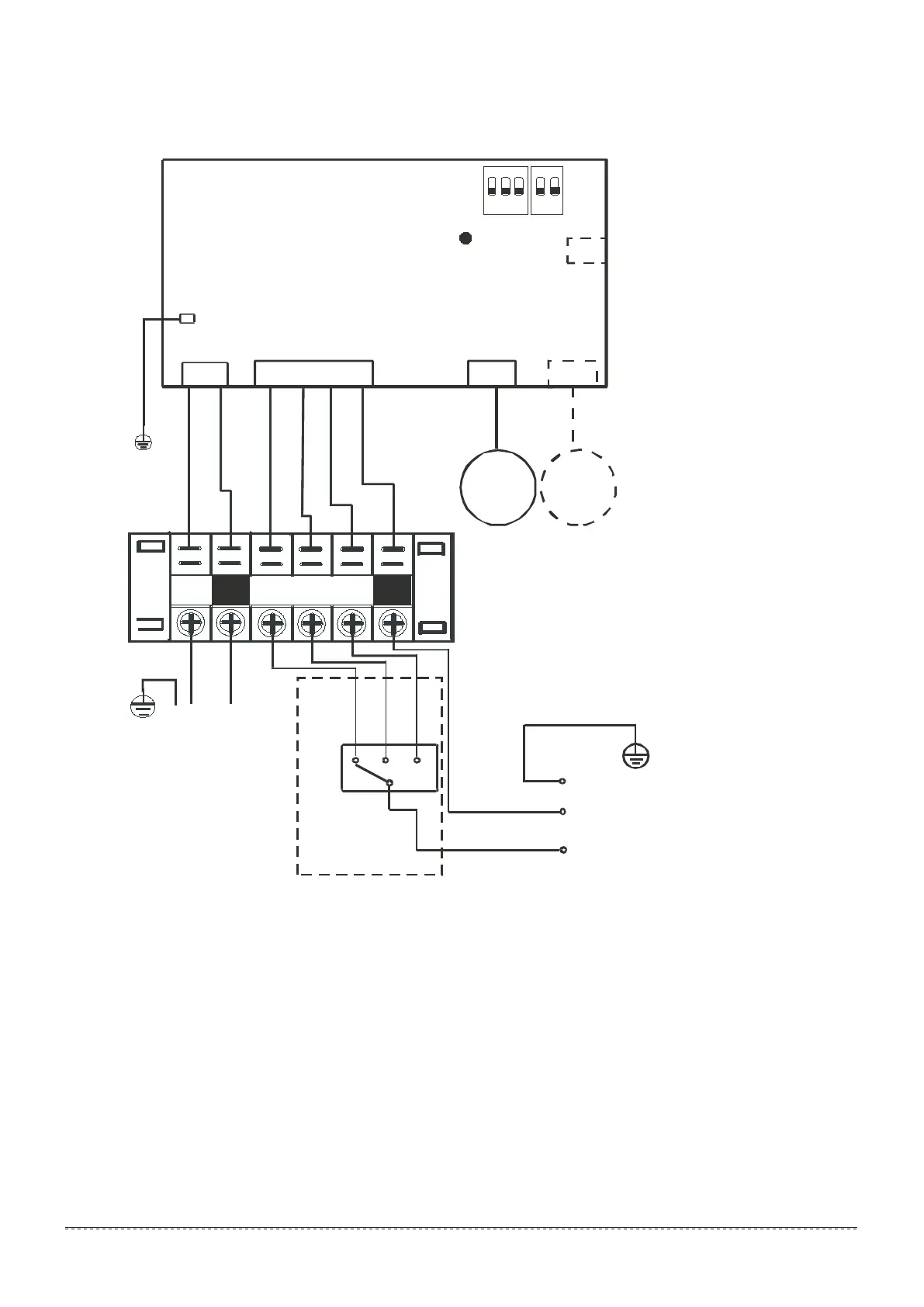
10.1 Wiring Diagram
MOTOR1
CN2
CN1
CN5
MAIN BOAD
MOTOR2
CN8
SW1
SW2
ON
OF F
S8
ON
S6
OF F
S7 S4S5
YELLOW/GREEN
EARTH
L
HI MID LOW
N N
YELLOW/GREEN
POWER IN
C N3
YELLOW
BLUE
RED
BLACK
Live wire
Nuetral wire
Ground wire
Three-speed switch
LO.SPEED
MI.SPEED
HI.SPEED
POWER IN
ALARM
GRAY
BROWN
LED 4

Related product manuals