EasyManua.ls Logo

Midea MOD30U-36CN1-R - Page 128

Midea MOD30U-36CN1-R
264 pages
To Next Page IconTo Next Page
To Next Page IconTo Next Page
To Previous Page IconTo Previous Page
To Previous Page IconTo Previous Page
Loading...
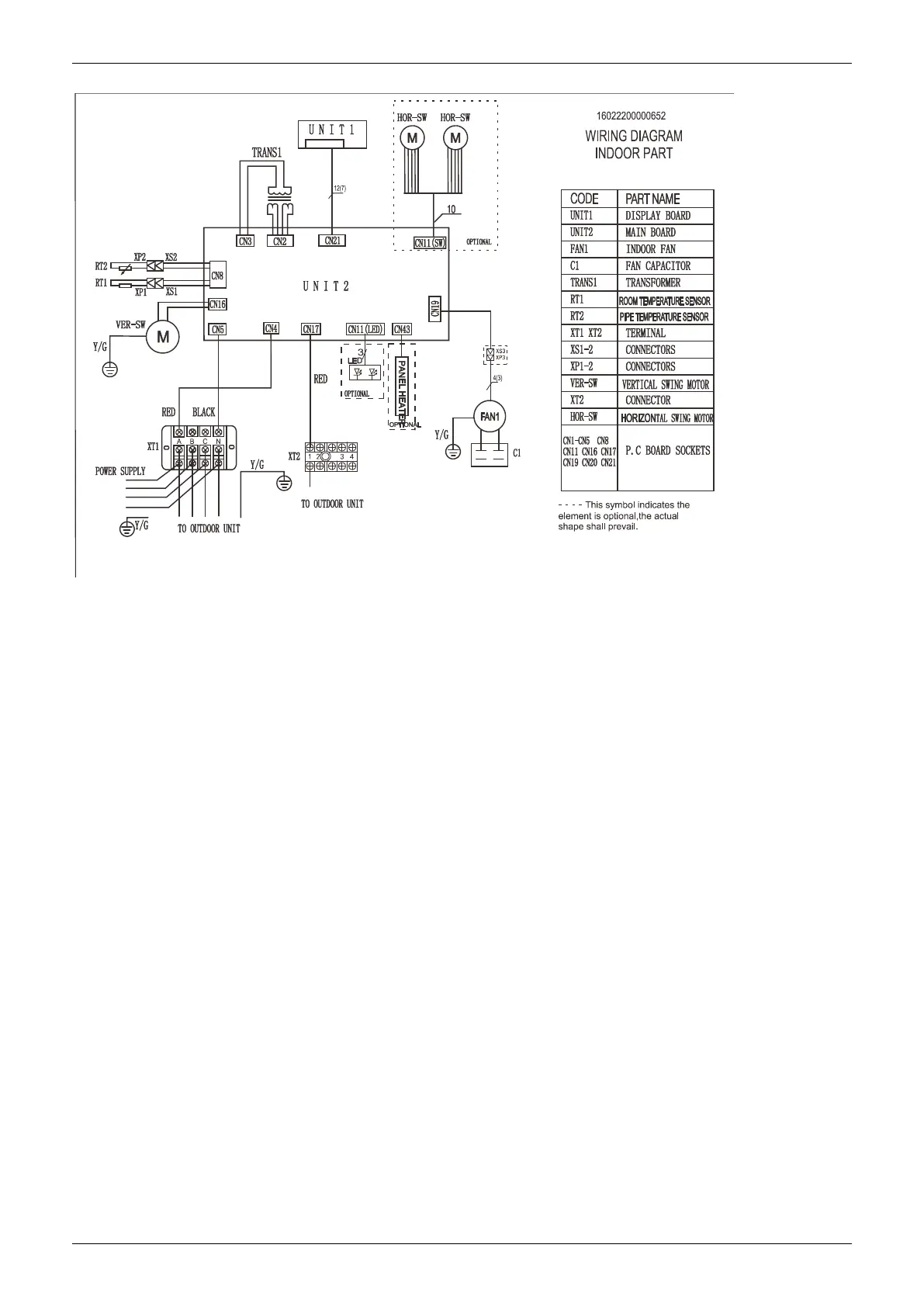
Wiring Diagrams
124 M Floor-standing Type
MFM-48CRN1-RB4, MFM-60CRN1-R

Table of Contents

Related product manuals