EasyManua.ls Logo

Midea MTI-36HWN1-R1 - Dimensions

Midea MTI-36HWN1-R1
189 pages
To Next Page IconTo Next Page
To Next Page IconTo Next Page
To Previous Page IconTo Previous Page
To Previous Page IconTo Previous Page
Loading...
Light Commercial R410A on-off DM17-01.01.08en
109
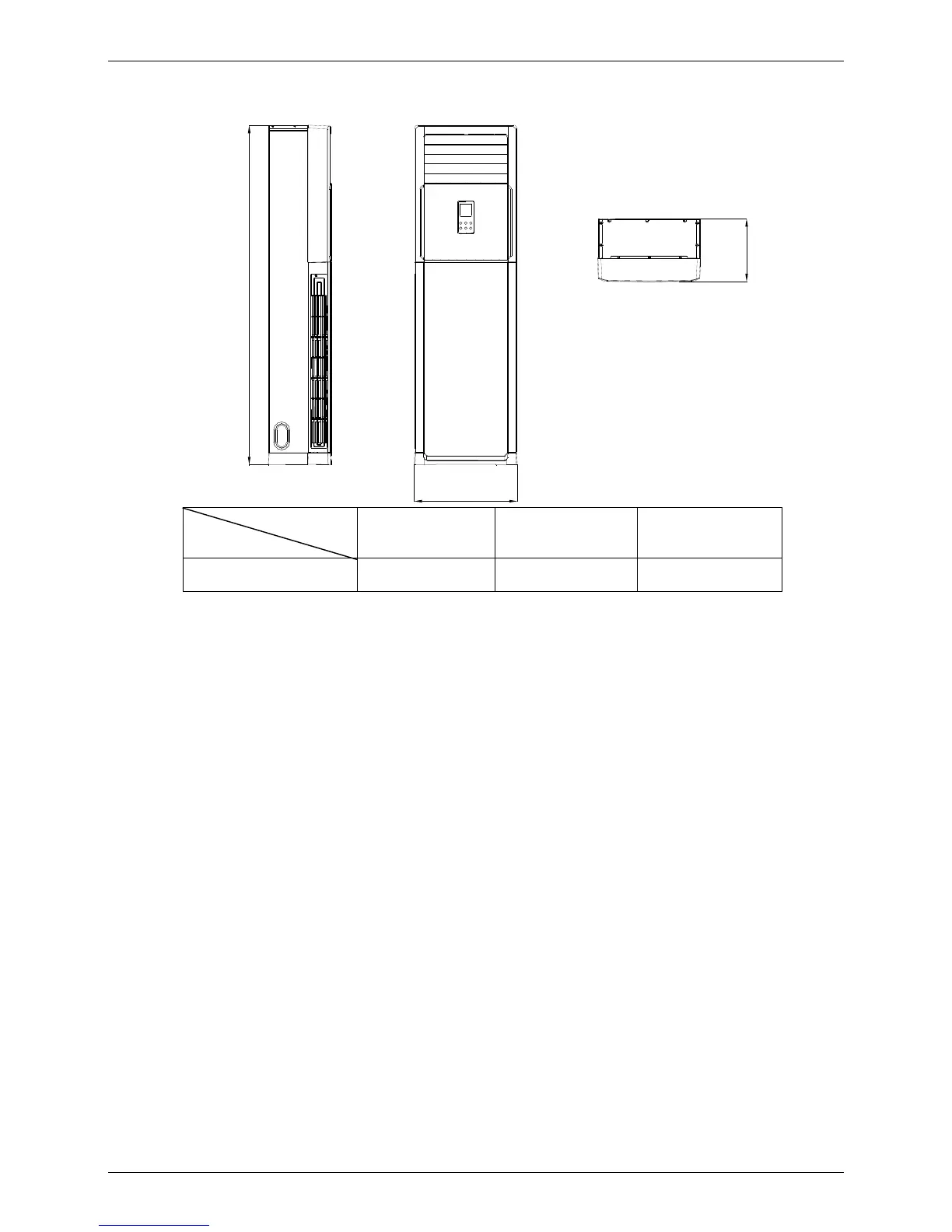
3. Dimensions
Dimension
Model
W(mm) D(mm) H(mm)
24 500 315 1700
H
W
D

Table of Contents

Related product manuals