EasyManua.ls Logo

Miele DA 6480 - Page 23

Miele DA 6480
40 pages
Print Icon
To Next Page IconTo Next Page
To Next Page IconTo Next Page
To Previous Page IconTo Previous Page
To Previous Page IconTo Previous Page
Loading...
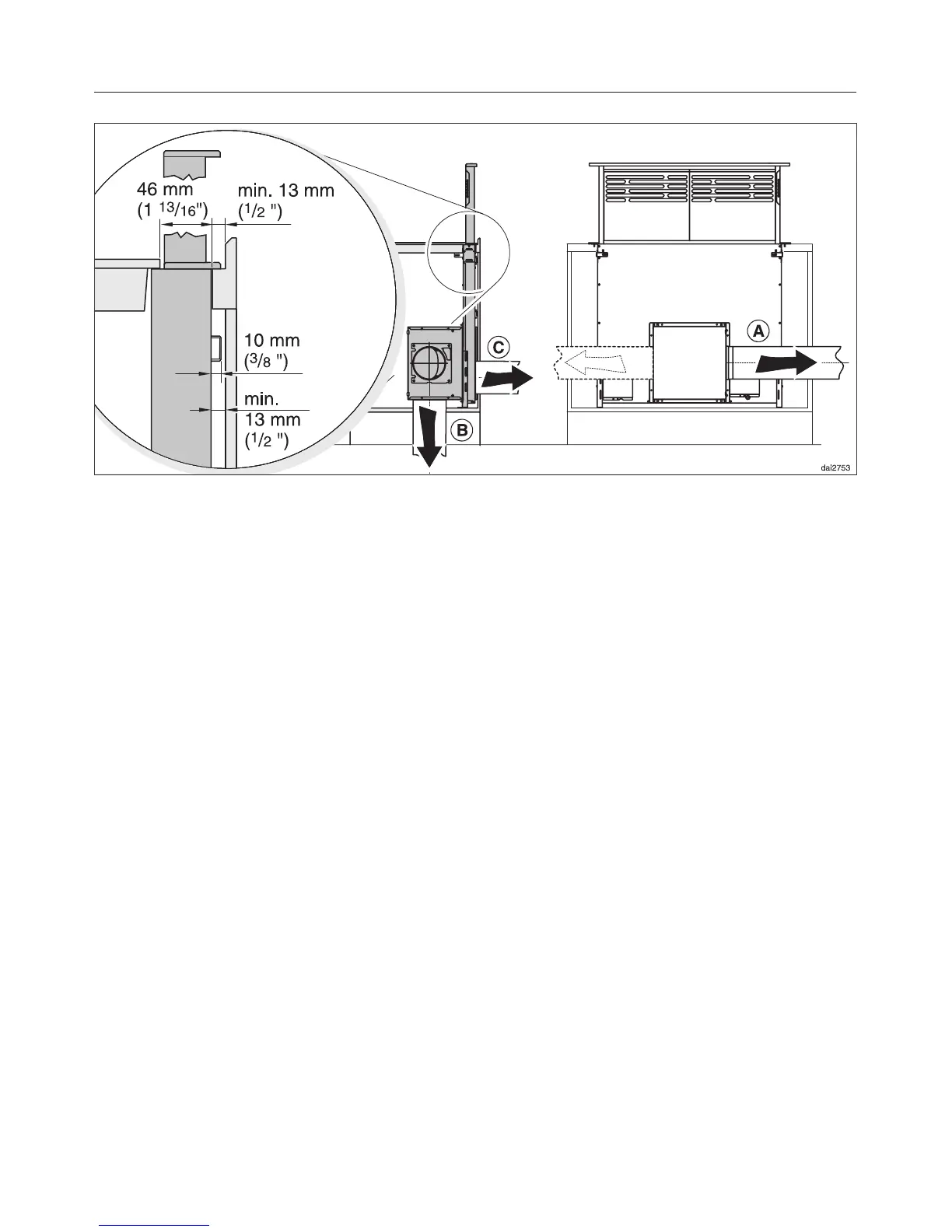
Exhaust air ducting using the DAG 500
internal blower, installed on the front of
the appliance [vent duct 6" C
(150 mm)]: a to the left or right, b
downwards, c to the rear.
If the blower is being installed at the
rear of the appliance, a cut-out must be
made in the rear of the cabinet or wall
where it will be mounted and the
appropriate clearances must be
maintained behind the cabinet.
d Feed the power cord and control
cable when using an external blower
downwards or to the rear.
e Using the DAG 1000 external
blower, install exhaust ducting to the
rear (vent duct 10" C (254 mm)).
If installing the exhaust ducting to the
front, appropriate clearances must be
maintained in the cabinet.
a) Cooktop overhang
b) Minimum width of the cooktop:
DA 6480: 28" (711 mm)
DA 6490: 34" (864 mm)
The specified dimensions minimum
cut-out dimensions must be
observed.
If an oven or stove is installed before
the ventilation system, read the
associated installation instructions.
Note all installation dimensions and
guidelines regarding ventilation
systems.
Be aware of kitchen cabinets, back
splashes and/or racks in the area of
the ventilation system and the
cooktop. Ensure that the area where
the vent rises is free of obstacles.
Make sure that any required
minimum distance between the front
edge of the countertop and the front
edge of the cooktop is maintained.
If there is a drawer in the way, it must
be shortened or removed. The front
panel of the drawer could also be
installed to permanently cover the
drawer cut-out.
Appliance dimensions
23

Related product manuals