EasyManua.ls Logo

Miele DAS 2620 - Dimensions for Varied Cabinet Installations

Miele DAS 2620
40 pages
Print Icon
To Next Page IconTo Next Page
To Next Page IconTo Next Page
To Previous Page IconTo Previous Page
To Previous Page IconTo Previous Page
Loading...
Installation
*INSTALLATION*
30
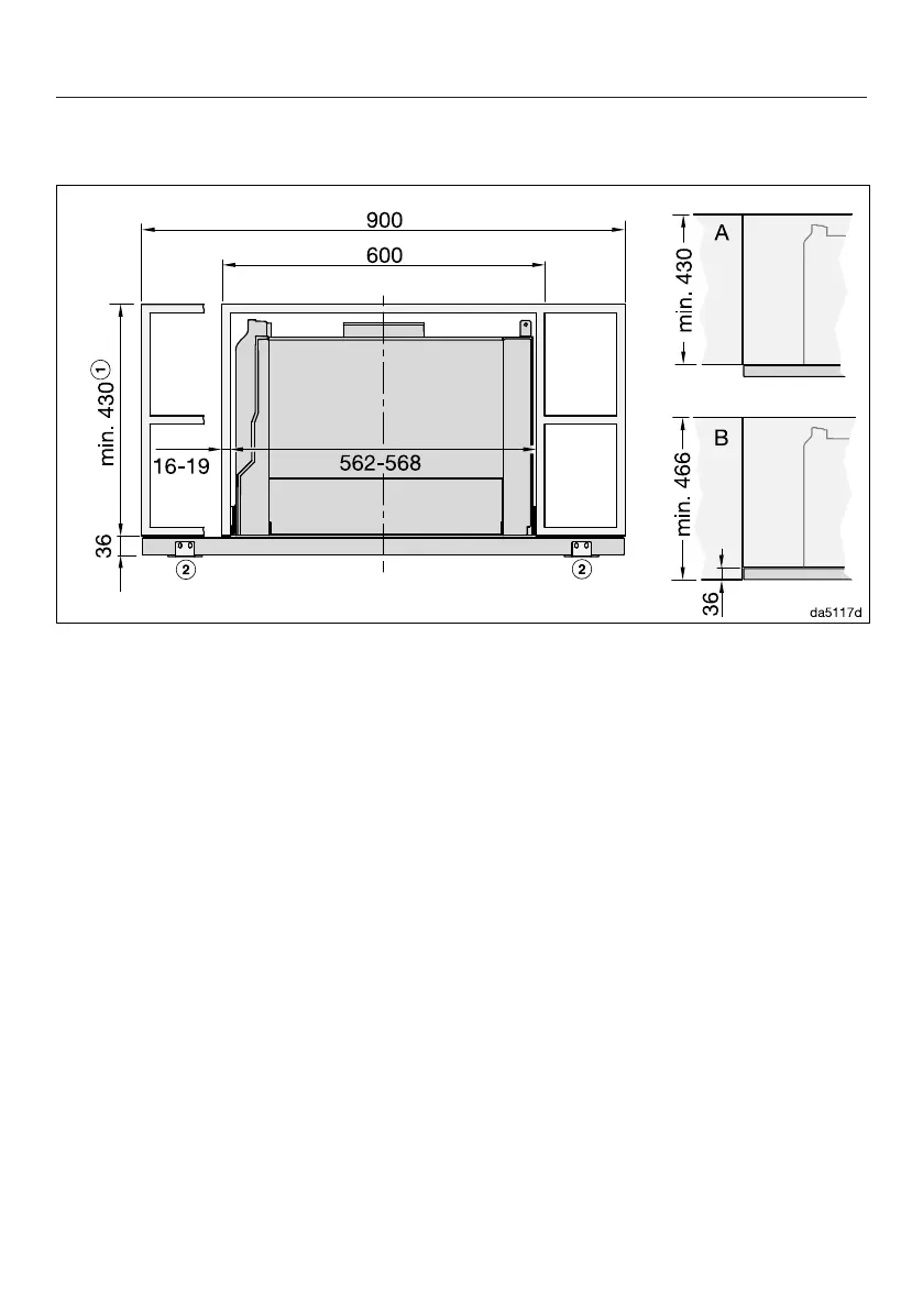
Diagram 3: DAS 2920 in a 600mm wide cabinet or in a 900mm wide cabinet with
side compartments
The drawing is not to scale
See diagram 1 for side view
Footnotes for diagrams 1 to 3:
a
Extraction or recirculation with conversion kit DUU150
b
DML2000 bracket (optional accessory) for fitting a front panel
* In this installation situation, the deflector plate is flush with the front edge of the
cabinet niche. If you wish to position the rangehood further forwards or further
back, you must adapt the dimensions accordingly (e.g. if you are using a front
panel).
The height of the cabinet and the cut-out dimensions must take account of any
accessories installed.
AU/NZ: It is recommended to install the rangehood so that the bottom of the
rangehood canopy sits flush with the bottom of adjacent furniture units, see
detailB.