EasyManua.ls Logo

Mipro MA-708 - Page 26

Mipro MA-708
66 pages
Print Icon
To Next Page IconTo Next Page
To Next Page IconTo Next Page
To Previous Page IconTo Previous Page
To Previous Page IconTo Previous Page
Loading...
圖號
NUMBER
日期
DATE
設計
DESIGNED
機型
MOEDL
比例
SCALE
繪圖
DRAWN
品名
DESCRIPTION
材質
MATERIAL
核准
APPROVED
(F)
(D)
(B)
(G)
(E)
(C)
版本
VISION
Ball
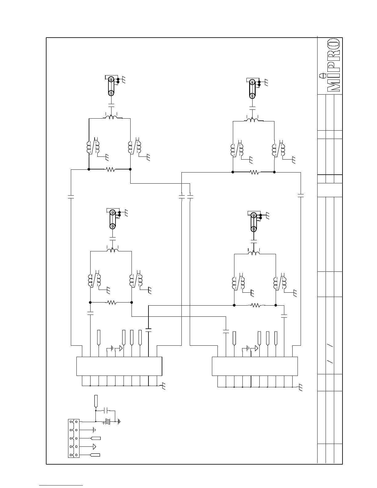
1CR099AA MRM-70/MA-705(R099D1)
10/31/2003
Jack
1 1 A3
Michael
VCC IN
A_VT
A_SQ
B_VT
B_SQ
B_AF
VCC IN
A_AF
1
C1
1
C2
1
2
3
4
5
J1
A_AF
B_AF
1
32
4
5
J2
1
R1
ACH U_ANT
1
C3
1
32
4
5
J3
1
R2
BCH U_ANT
1
C4
1
R3
ACH V_ANT
1
C9
1
R4
BCH V_ANT
1
C10
1
C5
1
C7
1
C6
1
C8
VCC IN
1
C11
1
C12
1
C13
1
C14
A1
A1
A2
A2
A3
A3
A4
A4
A5
A5
A6
A6
A7
A7
A8
A8
A9
A9
A10
A10
B1
B1
B2
B2
B3
B3
B4
B4
B5
B5
B6
B6
B7
B7
B8
B8
B9
B9
B10
B10
EP1
A1
A1
A2
A2
A3
A3
A4
A4
A5
A5
A6
A6
A7
A7
A8
A8
A9
A9
A10
A10
B1
B1
B2
B2
B3
B3
B4
B4
B5
B5
B6
B6
B7
B7
B8
B8
B9
B9
B10
B10
EP2
12
3
6
4
L1
12
3
6
4
L2
12
3
6
4
L4
12
3
6
4
L5
6 4
2
3
1
L9
6 4
2
3
1
L12
6 4
2
3
1
L3
6 4
2
3
1
L6
12
3
6
4
L8
12
3
6
4
L7
12
3
6
4
L11
12
3
6
4
L10
1
32
4
5
J4
1
32
4
5
J5

Other manuals for Mipro MA-708

Related product manuals