EasyManua.ls Logo

Mipro MA-708 - Page 48

Mipro MA-708
66 pages
Print Icon
To Next Page IconTo Next Page
To Next Page IconTo Next Page
To Previous Page IconTo Previous Page
To Previous Page IconTo Previous Page
Loading...
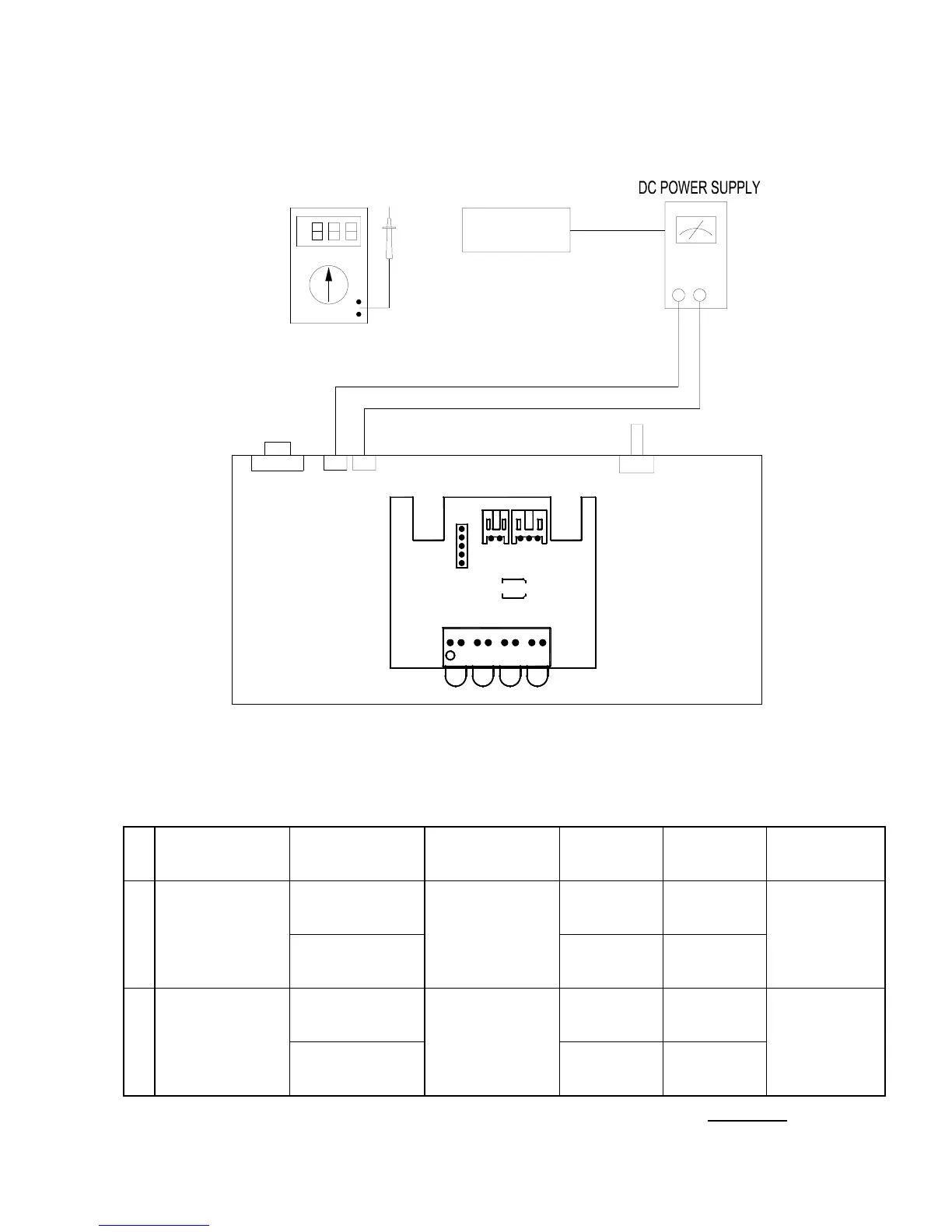
MA-708(LED Meter) TEST AND ALIGNMENT INSTRUCTIONS
一、Measuring instruments and testset-up
Multimeter
DC TP OUTPUT
-
+
CONTRO1
LED1
P3
P2
P1
C3
+
-
GPIB
-
+
二、Pre-set
A. Dc power supply
+32V/1A OUT
NO
MEASUREMENT
ADJUSTMENT
SIGNAL INPUT
PREPARATION
UNIT SETTING
TESTPOINT ADJUSTER
NORMAL
VALUE
P1DC Power:
32V(1A)
1 Charge LED
P3DC Power:
0V(1A)
LED1
LED1
(bright)
P1DC Power:
32V(1A)
2
Short Circuit
Test
P3DC Power:
32V(1A)
LED1
LED1
(trickle)
A708R03B
SERVICE / TECHNICAL MANUALS

Other manuals for Mipro MA-708

Related product manuals