EasyManua.ls Logo

Mitsubishi Electric MXZ-4E72VA-E1 - Page 14

Mitsubishi Electric MXZ-4E72VA-E1
134 pages
Print Icon
To Next Page IconTo Next Page
To Next Page IconTo Next Page
To Previous Page IconTo Previous Page
To Previous Page IconTo Previous Page
Loading...
14
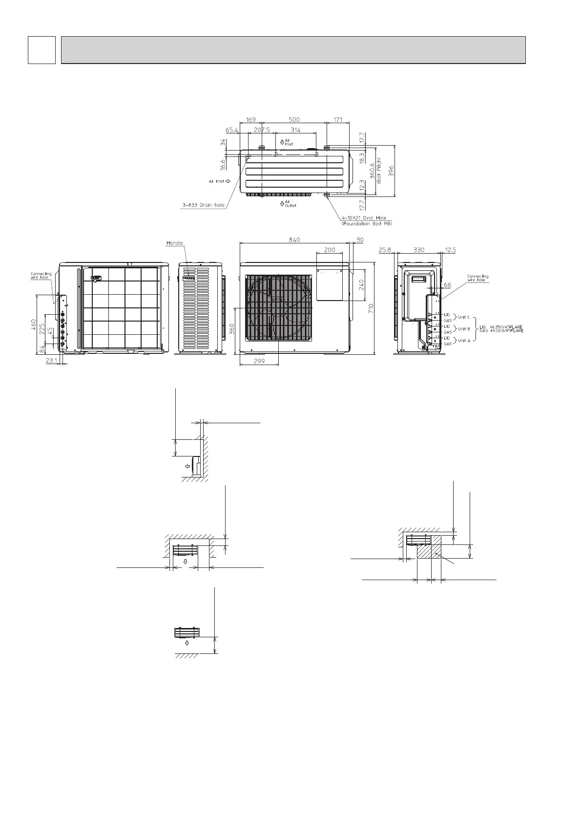
OUTLINES AND DIMENSIONS
5
1.Installation space
Note : Leave front and both sides
free of obstruction.
Note : Leave rear, overhead and
both sides free of obstruction.
500 or more
100 or more
Note : Leave front and overhead
free of obstruction.
100 or more
350 or more
200 or more
500 or more
2.Service space
100 or more
500 or more
350 or more
350 or more
100 or more
Service space
MXZ-3E54VA MXZ-3E68VA
Unit: mm
OBH723G

Related product manuals