EasyManua.ls Logo

Mitsubishi Electric MXZ-4E72VA-E1 - Page 16

Mitsubishi Electric MXZ-4E72VA-E1
134 pages
Print Icon
To Next Page IconTo Next Page
To Next Page IconTo Next Page
To Previous Page IconTo Previous Page
To Previous Page IconTo Previous Page
Loading...
16
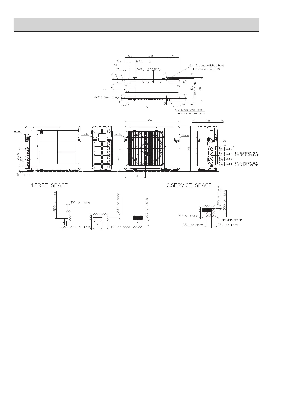
MXZ-4E83VA
Unit: mm
Air in
Air in
Air in
Air out
OBH723G

Related product manuals