EasyManua.ls Logo

Mitsubishi Electric MXZ-4E72VA-E1 - Page 56

Mitsubishi Electric MXZ-4E72VA-E1
134 pages
Print Icon
To Next Page IconTo Next Page
To Next Page IconTo Next Page
To Previous Page IconTo Previous Page
To Previous Page IconTo Previous Page
Loading...
56
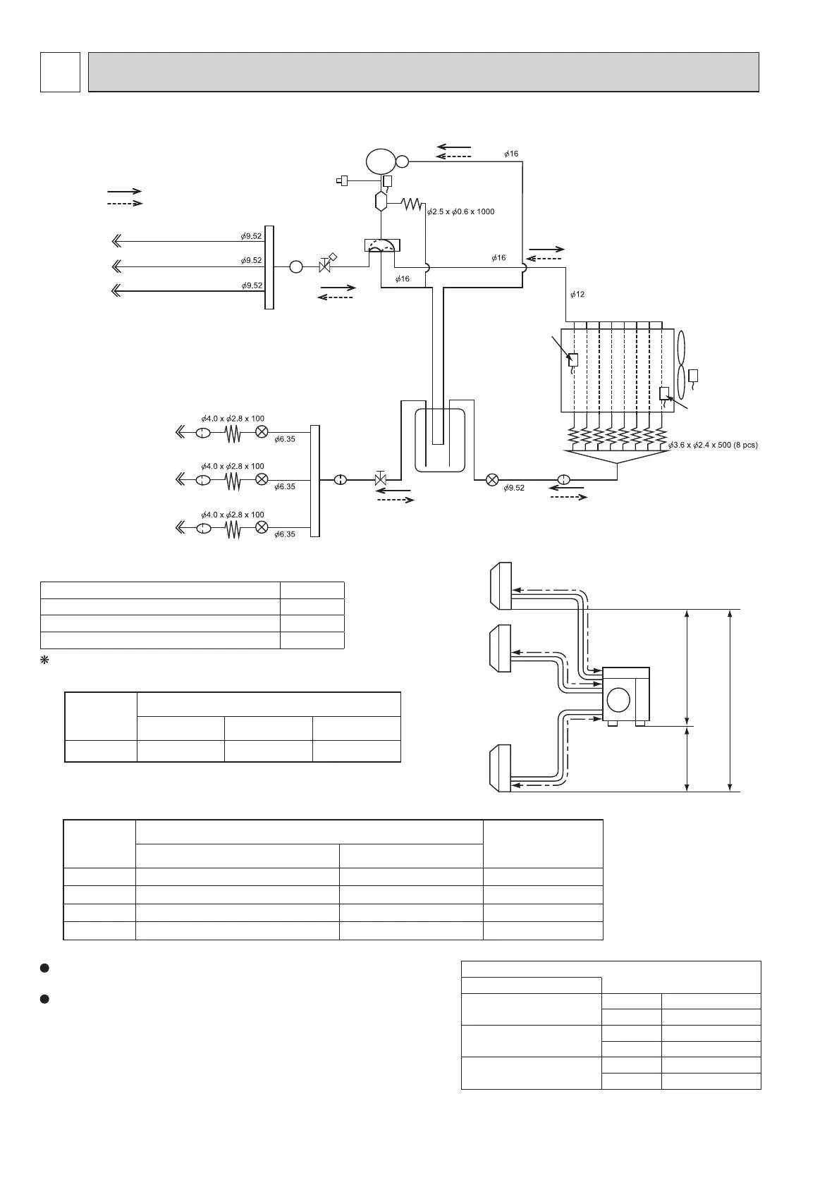
REFRIGERANT SYSTEM DIAGRAM
7
Strainer
#100
Power
receiver
LEV A
LEV B
LEV C
Oil separator
Compressor
Defrost
thermistor
RT61
Distributor
Muffler
4-way valve
LEV E
Indoor unit
C
Indoor unit
B
Indoor unit
A
Indoor unit
A
Indoor unit
B
Indoor unit
C
Capillary tube
Capillary tube
Capillary tube
Capillary tube
Capillary tube
Discharge
temperature
thermistor RT62
Strainer
#100
Strainer
#100
Strainer
#100
R.V. coil
OFF
ON
Refrigerant flow in cooling
Refrigerant flow in heating
Ambient
temperature
thermistor
RT65
Outdoor heat
exchanger
temperature
thermistor
RT68
FAN-OUT
HEX-OUT
Strainer
#100
Stop valve with
service port
Stop valve
High-pressure switch
UNIT: mm (inch)
UNIT: mm
MXZ-3E54VA
MAX REFRIGERANT PIPING LENGTH
Outdoor unit union diameter
For
Indoor unit A
Liquid 6.35(1/4)
Gas 9.52(3/8)
Indoor unit B
Liquid 6.35(1/4)
Gas 9.52(3/8)
Indoor unit C
Liquid 6.35(1/4)
Gas 9.52(3/8)
a
b
c
Outdoor
unit
Indoor
units
15 m
10 m
15 m
Max.
Height
difference
Piping length each indoor unit (a, b, c) 25 m
Total piping length (a+b+c) 50 m
Bending point for each unit 25
Total bending point 50
It is irrelevant which unit is higher.
Refrigerant pipe diameter is different according to indoor unit to be
connected. When using extension pipes, refer to the right table.
When diameter of refrigerant pipe is different from that of outdoor
unit union, use optional Different-diameter pipe.
For further information on Different-diameter pipe, refer to "PARTS
CATALOG".
ADDITIONAL REFRIGERANT CHARGE
Outdoor unit
precharged
(g)
Refrigerant piping length (one way, 3 units total)
40 m 45 m 50 m
2,700 0 100 200
Calculation : Xg = 20 g/m x (Refrigerant piping length (m) - 40)
WHEN CONNECTING TO MFZ-KJ SERIES INDOOR UNIT
MXZ-3E54VA
No. of
MFZ-KJ
indoor units
Refrigerant piping length (L)
Maximum amount of
refrigerant
~ 40 m ~ 50 m
None Charge-less (2,700 g) (L-40) x 20 g/m 2,900 g
1 unit 100 g additional charge (2,800 g) 100 g + (L-40) x 20 g/m 3,000 g
2 units 200 g additional charge (2,900 g) 200 g + (L-40) x 20 g/m 3,100 g
3 units 300 g additional charge (3,000 g) 300 g + (L-40) x 20 g/m 3,200 g
OBH723G

Related product manuals