EasyManua.ls Logo

Mitsubishi Electric MXZ-4E72VA-E1 - Page 58

Mitsubishi Electric MXZ-4E72VA-E1
134 pages
Print Icon
To Next Page IconTo Next Page
To Next Page IconTo Next Page
To Previous Page IconTo Previous Page
To Previous Page IconTo Previous Page
Loading...
58
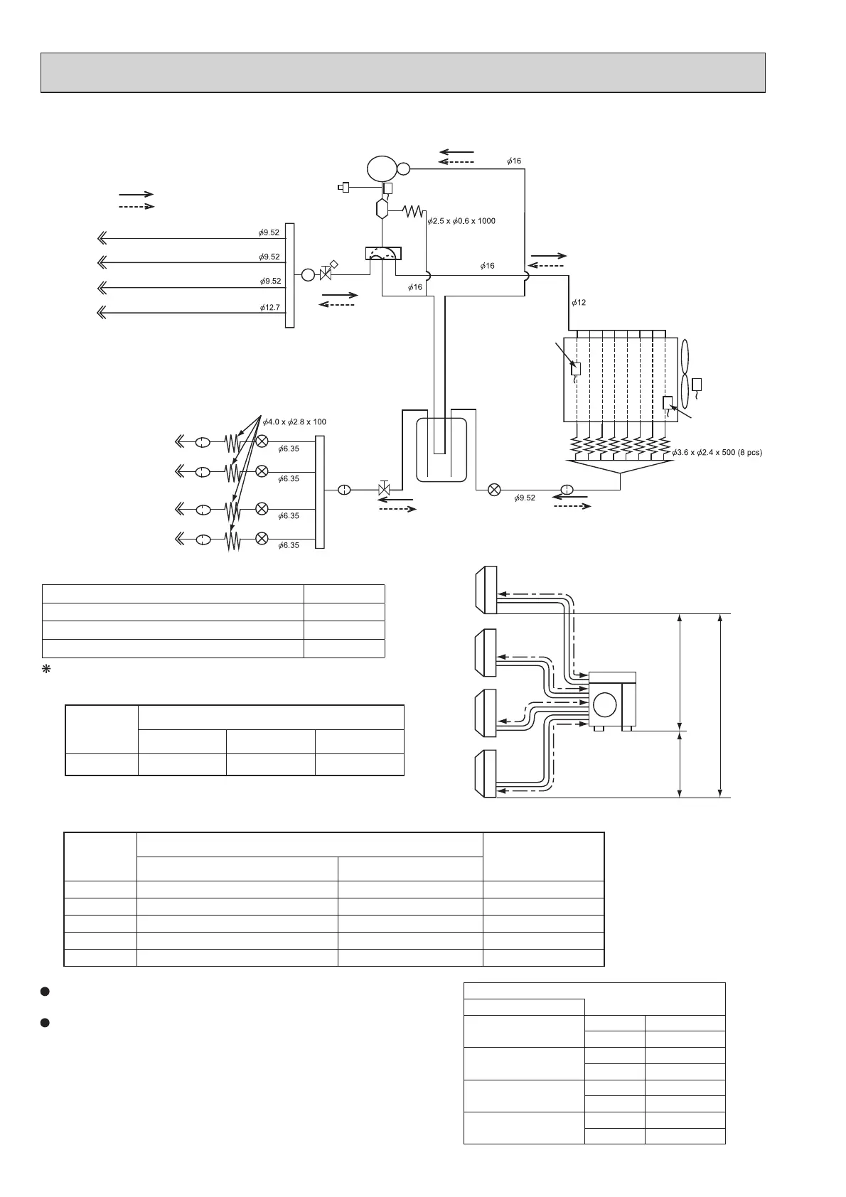
MXZ-4E72VA
Indoor unit
D
Power
receiver
LEV A
LEV B
LEV C
LEV D
Oil separator
Compressor
Muffler
4-way valve
LEV E
Indoor unit
C
Indoor unit
B
Indoor unit
A
Indoor unit
A
Indoor unit
B
Indoor unit
C
Indoor unit
D
Capillary tube
Capillary tube
Discharge
temperature
thermistor RT62
Strainer
#100
Strainer
#100
Strainer
#100
Strainer
#100
Strainer
#100
R.V. coil
OFF
ON
Refrigerant flow in cooling
Refrigerant flow in heating
Distributor
HEX-OUT
Outdoor heat
exchanger
temperature
thermistor
RT68
Defrost
thermistor
RT61
Capillary tube
Ambient
temperature
thermistor
RT65
FAN-OUT
Strainer
#100
Stop valve with
service port
Stop valve
High-pressure
switch
UNIT: mm
a
b
c
d
Outdoor
unit
Indoor
units
15 m
10 m
15 m
Max.
Height
difference
UNIT: mm (inch)
Outdoor unit union diameter
For
Indoor unit A
Liquid 6.35(1/4)
Gas 12.7(1/2)
Indoor unit B
Liquid 6.35(1/4)
Gas 9.52(3/8)
Indoor unit C
Liquid 6.35(1/4)
Gas 9.52(3/8)
Indoor unit D
Liquid 6.35(1/4)
Gas 9.52(3/8)
Refrigerant pipe diameter is different according to indoor unit to be
connected. When using extension pipes, refer to the right table.
When diameter of refrigerant pipe is different from that of outdoor
unit union, use optional Different-diameter pipe.
For further information on Different-diameter pipe, refer to "PARTS
CATALOG".
MAX REFRIGERANT PIPING LENGTH
Piping length each indoor unit (a, b, c, d) 25 m
Total piping length (a+b+c+d)
60 m
Bending point for each unit 25
Total bending point 60
It is irrelevant which unit is higher.
ADDITIONAL REFRIGERANT CHARGE
Outdoor unit
precharged
(g)
Refrigerant piping length (one way, 4 units total)
40 m 50 m 60 m
2,700 0 200 400
Calculation : Xg = 20 g/m x (Refrigerant piping length (m) - 40)
WHEN CONNECTING TO MFZ-KJ SERIES INDOOR UNIT
MXZ-4E72VA
No. of
MFZ-KJ
indoor units
Refrigerant piping length (L)
Maximum amount of
refrigerant
~ 40 m ~ 60 m
None Charge-less (2,700 g) (L-40) x 20 g/m 3,100 g
1 unit 100 g additional charge (2,800 g) 100 g + (L-40) x 20 g/m 3,200 g
2 units 200 g additional charge (2,900 g) 200 g + (L-40) x 20 g/m 3,300 g
3 units 300 g additional charge (3,000 g) 300 g + (L-40) x 20 g/m 3,400 g
4 units 400 g additional charge (3,100 g) 400 g + (L-40) x 20 g/m 3,500 g
OBH723G

Related product manuals