EasyManua.ls Logo

Mitsubishi SRC258CENF-L - Page 44

Mitsubishi SRC258CENF-L
68 pages
To Next Page IconTo Next Page
To Next Page IconTo Next Page
To Previous Page IconTo Previous Page
To Previous Page IconTo Previous Page
Loading...
1-44
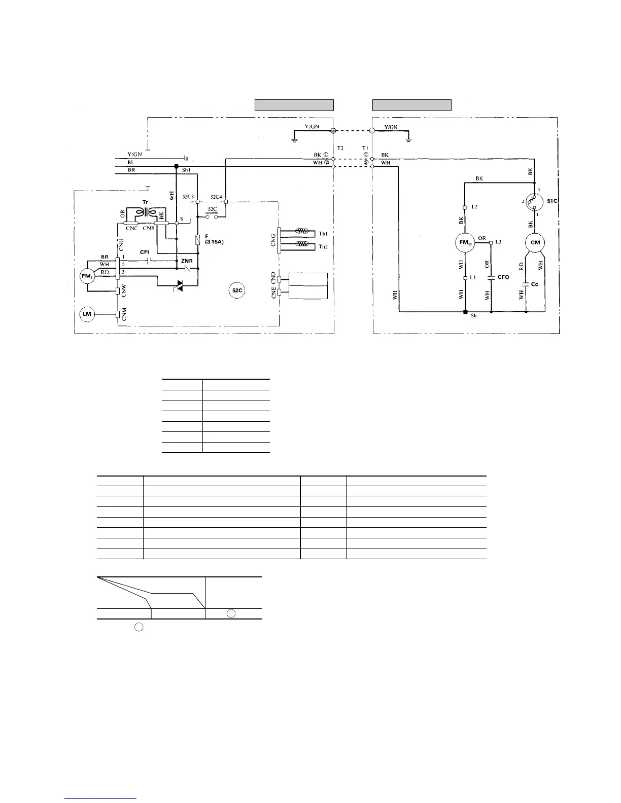
ModelsSRK258CENF-L, 288CENF-L, 328CENF-L, 408CENF-L
Color symbol
BK Black
BL Blue
BR Brown
RD Red
OR Orange
WH White
Y/GN Yellow/Green
Meaning of marks
Symbol Parts name Symbol Parts name
C
C
Capacitor for CM LM Louver motor
CF
I
Capacitor for FM
I
Th
1
,
2
Thermistor
CF
O
Capacitor for FM
O
Tr Transformer
CM Compressor motor ZNR Varistor
F Fuse 51C Motor protector for CM
FM
I
Fan motor (Indoor unit) 52C Magnetic contactor for CM
FM
O
Fan motor (Outdoor unit)
Notes (1) ; denotes magentized relay ×: denotes demagnetized relay
(2) Th
1
is room temperature sensor. Th
2
(the heat exchanger sensor) is frost prevention sensor. (for details, refer to pages 74)
Table of relay operations
Operation
Cooling
Relay symbol Control part
52C CM
Power source
1 Phase 220/240V 50Hz
Printed circuit board
Wireless
R-Amp
Display
Indoor unit Outdoor unit

Related product manuals