EasyManua.ls Logo

Mitsubishi SRK60ZSX-W

Mitsubishi SRK60ZSX-W
158 pages
To Next Page IconTo Next Page
To Next Page IconTo Next Page
To Previous Page IconTo Previous Page
To Previous Page IconTo Previous Page
Loading...
'18 • SRK-T-234
-
22
-
R/C cable0.3mm
2
× 2 cores
A
dapted to R
o
H
S
directive
Exterior appearance
(Munsell color)
Pearl white
(N8.5) near equivalent
-
< 200 m
< 300 m
< 400 m
< 600 m
0.5 mm
2
× 2 cores
0.75 mm
2
× 2 cores
1.25 mm
2
× 2 cores
2.0 mm
2
× 2 cores
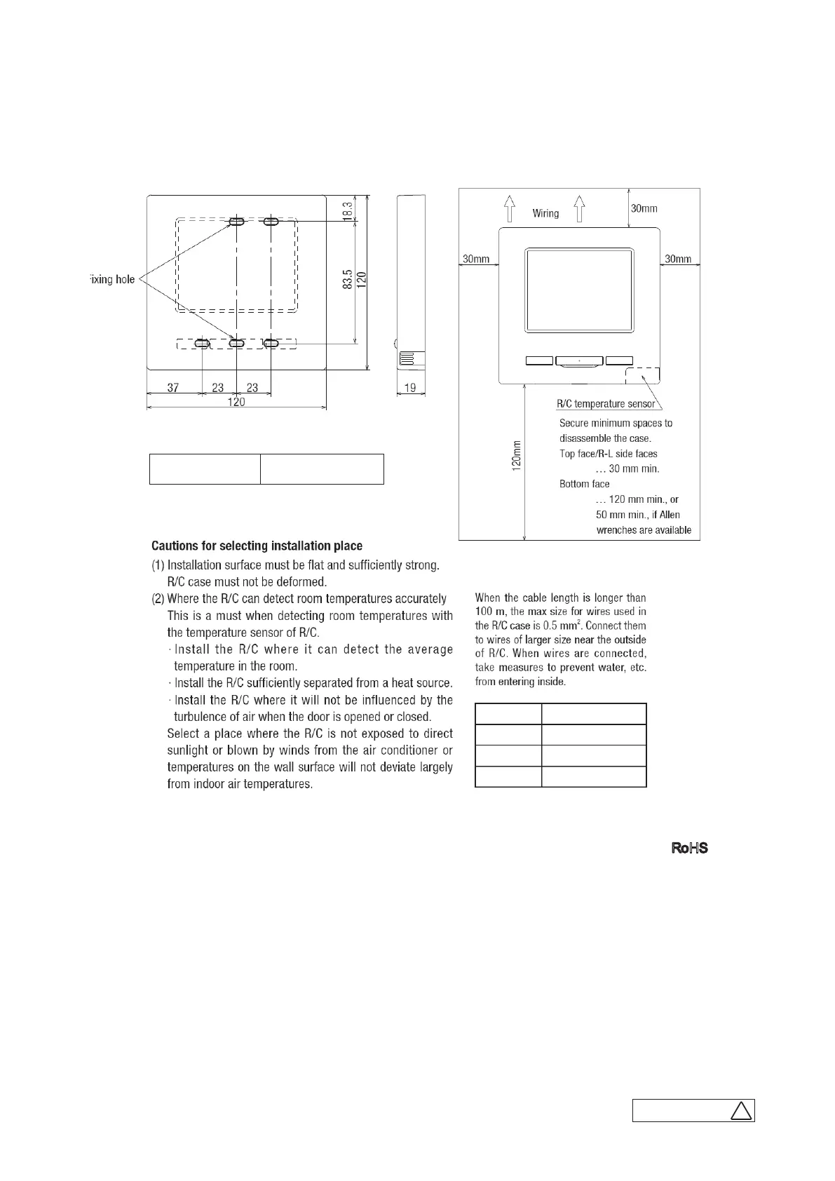
Installation space
Dimensions (Viewed from front)
A
PJZ000Z297
(b) Wired remote control (option parts)
Interface kit (SC-BIKN2-E) is required to use the wired remote control.
Model RC-EX3

Table of Contents

Related product manuals