EasyManua.ls Logo

Mono Eco FG159

Mono Eco FG159
104 pages
To Next Page IconTo Next Page
To Next Page IconTo Next Page
To Previous Page IconTo Previous Page
To Previous Page IconTo Previous Page
Loading...
Eco Convection Ovens | 4/5/7/10-Tray | Steam Installation and Operation Manual
88
MONO FG1BX-UK-MAN-0100 | Rev. C23 (July 2023)
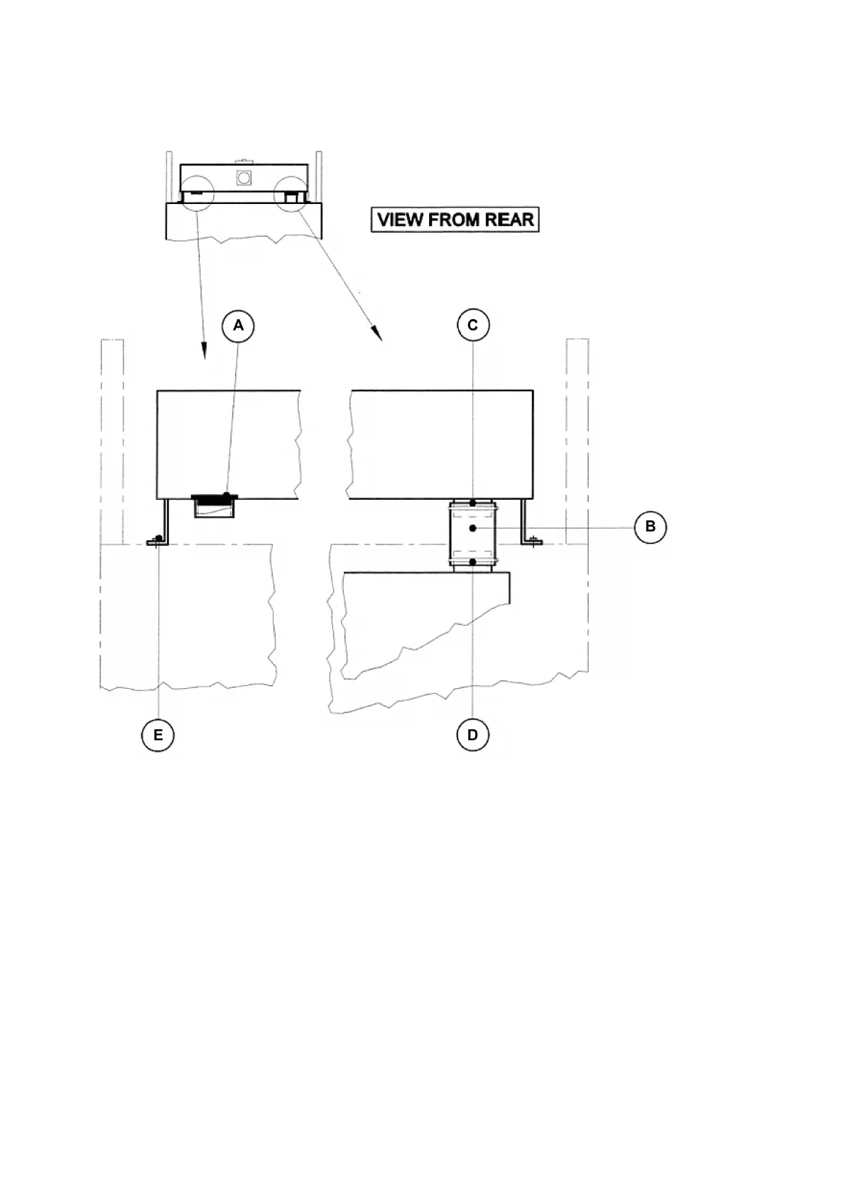
Figure 41: Installation of a condenser unit

Related product manuals