EasyManua.ls Logo

Mono FG138 - Page 85

Mono FG138
100 pages
Print Icon
To Next Page IconTo Next Page
To Next Page IconTo Next Page
To Previous Page IconTo Previous Page
To Previous Page IconTo Previous Page
Loading...
Installation and Operation Manual Eco Convection Ovens | 4/5/7/10-Tray | Steam
FG1BX-UK-MAN-0100 | Rev. A23 (March 2023) MONO
85
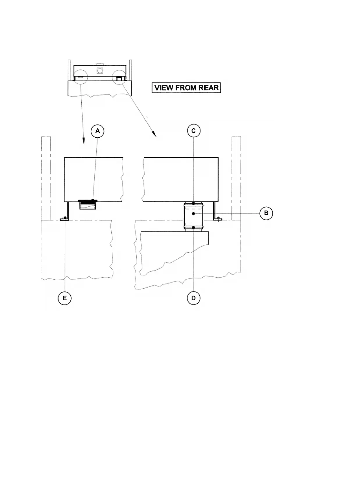
Figure 41: Installation of a condenser unit

Other manuals for Mono FG138

Related product manuals