EasyManua.ls Logo

MPM MPM-30-MBS-06 - Page 15

MPM MPM-30-MBS-06
Print Icon
To Next Page IconTo Next Page
To Next Page IconTo Next Page
To Previous Page IconTo Previous Page
To Previous Page IconTo Previous Page
Loading...
subtropical: ‘this refrigerating appliance is intended to be used at ambient temperatures
ranging from 16 °C to 38 °C (ST);
tropical: ‘this refrigerating appliance is intended to be used at ambient temperatures
ranging from 16 °C to 43 °C (T);
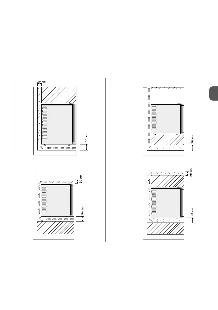
The area of the admission inlet and exhaust outlet should not be less than 200 cm
2
to ensure
smooth flow of air admission and exhaust, do not put the refrigerator into a closed cabinet.
The distance between wall and refrigerator side should be at least 20mm
The bottom should be left at least 50mm for air flowing air passing through must not be
preheated
Entire cooling system should be considered in the ventilation
The area of space around the ventilation grid (1) should be least 200 cm
2
.
WARNING! Attentions should be paid for the following points so as to ensure optimum effect of storage and
lower power consumption: The refrigerator should not be placed near heat source and in direct sunlight Near
the cooling system, there should be no things impeding flow of air The ventilation grid should not be covered
by anything, such as decorations and clothes etc. The refrigerator must be placed steady and levelly.
15
EN

Related product manuals