EasyManua.ls Logo

MTZ 920 - Page 234

Default Icon
269 pages
Print Icon
To Next Page IconTo Next Page
To Next Page IconTo Next Page
To Previous Page IconTo Previous Page
To Previous Page IconTo Previous Page
Loading...
Appendix
MTZ series 900
234
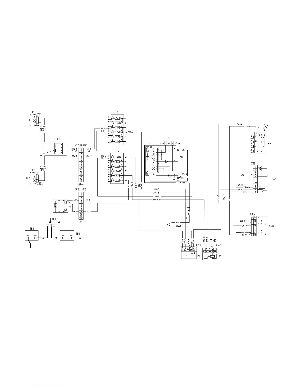
Connection diagram of the road headlights
LOWER BEAM
RELAY
UPPER BEAM
RELAY

Related product manuals