EasyManua.ls Logo

MTZ 920 - Page 243

Default Icon
269 pages
Print Icon
To Next Page IconTo Next Page
To Next Page IconTo Next Page
To Previous Page IconTo Previous Page
To Previous Page IconTo Previous Page
Loading...
Appendix
MTZ series 900
243
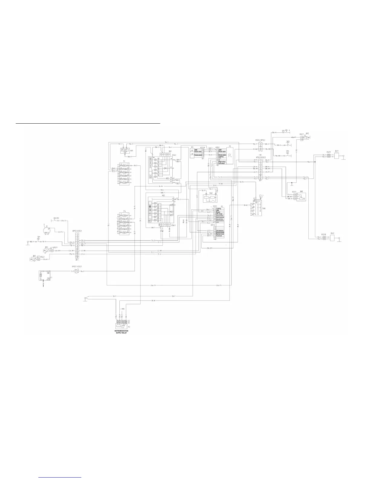
Diagram of the instrumentation dashboard 80-3805010-Д1

Related product manuals