EasyManua.ls Logo

MTZ 952.2 - Page 247

Default Icon
269 pages
Print Icon
To Next Page IconTo Next Page
To Next Page IconTo Next Page
To Previous Page IconTo Previous Page
To Previous Page IconTo Previous Page
Loading...
Appendix
MTZ series «900»
247
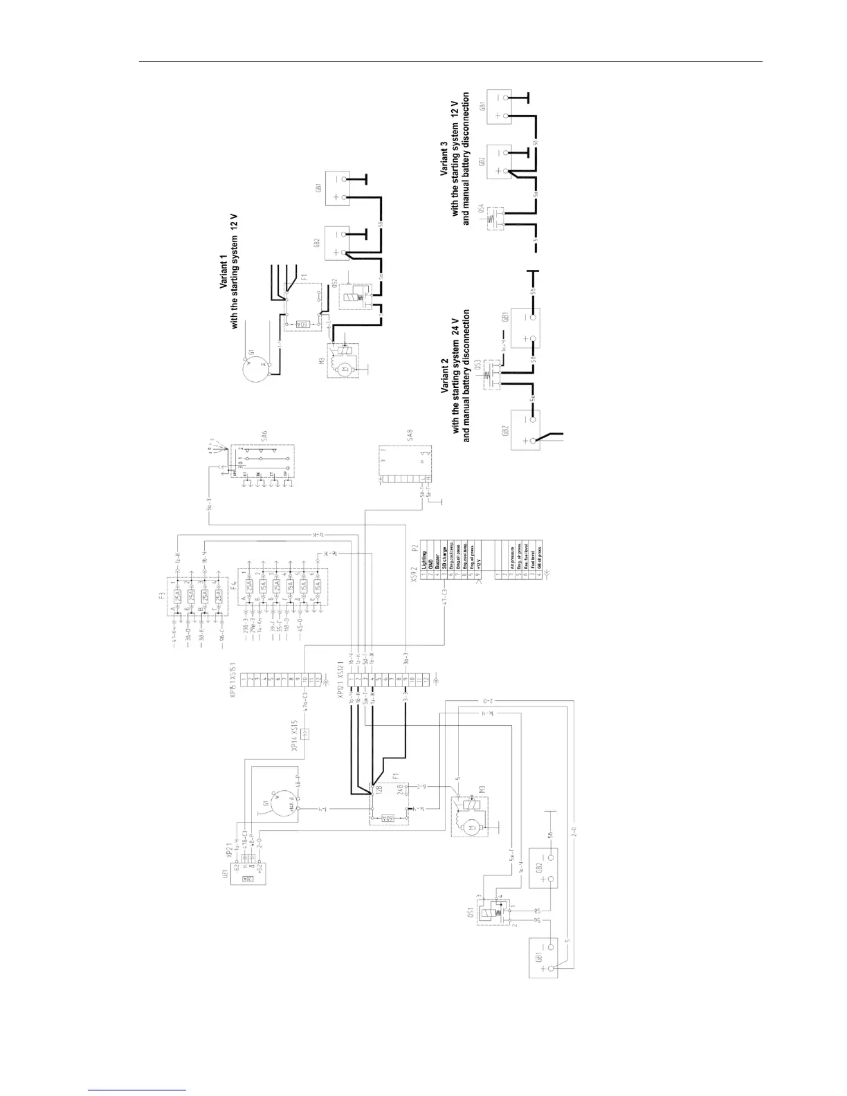
Fig. 2. Power supply system of the tractors

Related product manuals