EasyManua.ls Logo

MTZ 952.3 - Page 233

Default Icon
269 pages
Print Icon
To Next Page IconTo Next Page
To Next Page IconTo Next Page
To Previous Page IconTo Previous Page
To Previous Page IconTo Previous Page
Loading...
Appendix
MTZ series 900
233
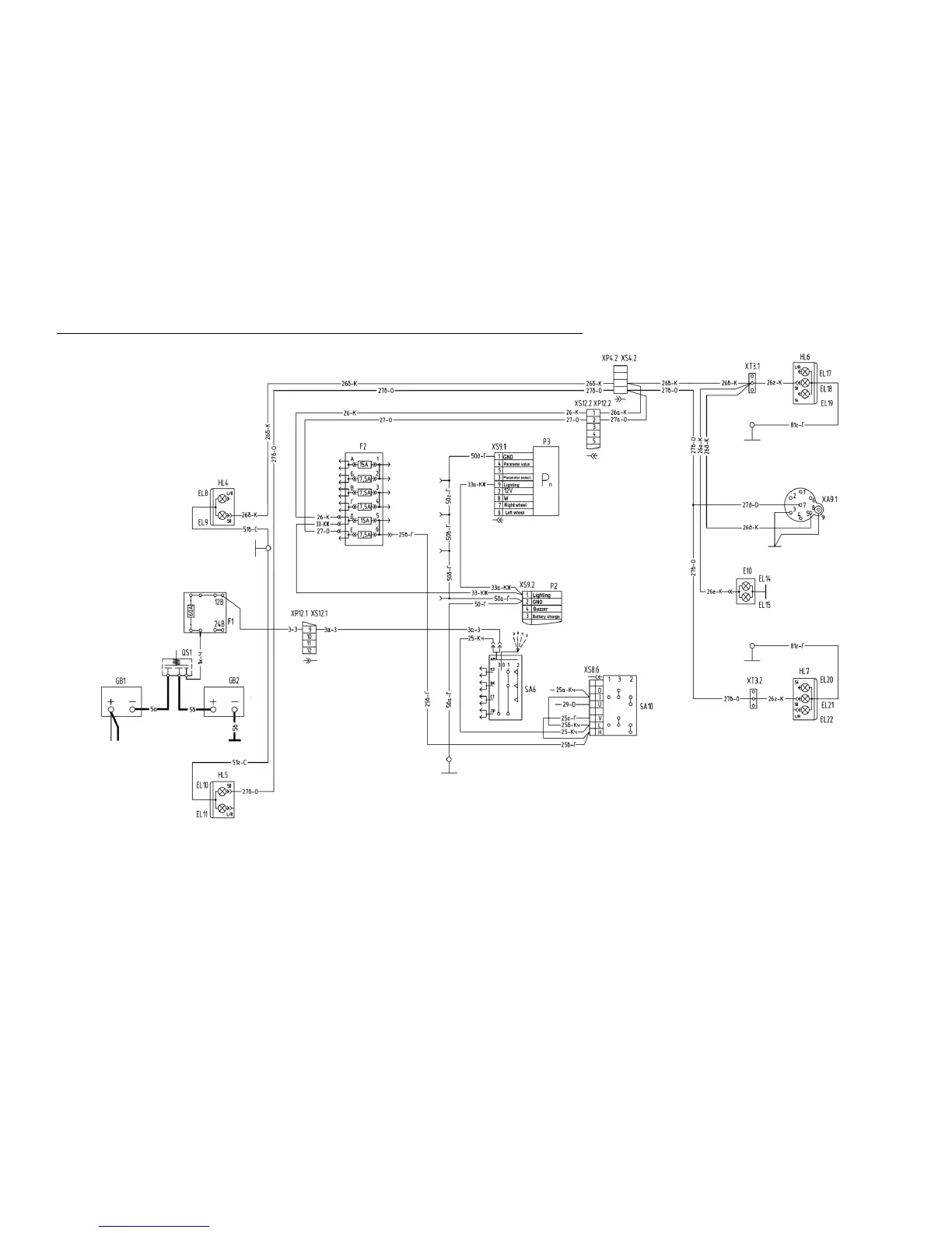
Connection diagram of the clearance lamps, number plate lights and instruments

Related product manuals