EasyManua.ls Logo

Newworld 60cm - Electrical Connection Procedure

Default Icon
24 pages
Print Icon
To Next Page IconTo Next Page
To Next Page IconTo Next Page
To Previous Page IconTo Previous Page
To Previous Page IconTo Previous Page
Loading...
installation
CONNECT TO THE ELECTRICITY
SUPPLY
WARNING: This appliance must be
earthed. Only connect to the electrical
mains terminal with the power switched
off. The electrical mains terminal is live.
Follow the terminal block connection
schematic
Loose and inappropriate connections can
make the terminal overheat.
Ensurethecableclampisttedcorrectly
and securely.
A device must be provided in the
electrical installation which allows the
appliance to be disconnected from the
mains at all poles with a contact opening
of at least 3mm.
We recommend that the appliance is con-
nected by a competent person who is a
member of a “Competent Person Scheme”
who will comply with the required local
regulations.
Connection should be made with a suit-
able cable.
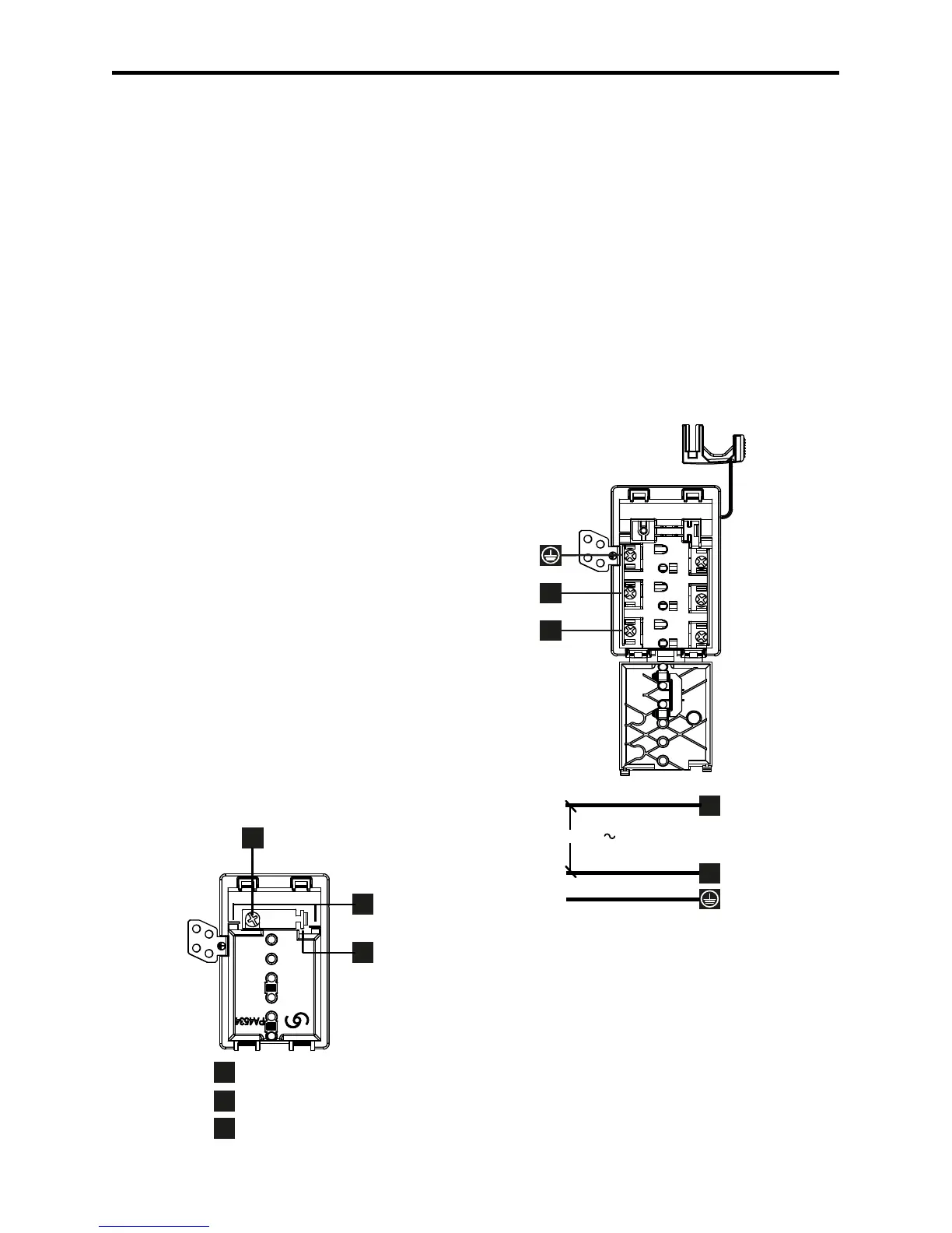
• Firstly open the terminal block cover
usingasmallatbladedscrewdriver
in the door release tabs shown below.
Door release tab
Cable clamp screw
Cable clamp ratchet
1
2
3
1
2
3
• Remove the cable clamp screw and
release the cable clamp retaining
arm.
Note;
The cable clamp has a ratchet type
mechanism on the right hand side of the
retaining arm.
• Strip the wires & connect to the
terminalblockasappropriate:-
• Fit the cable clamp & secure with the
screw provided.
• Close the terminal box, ensuring that
the cover is closed and all screws are
tight and in place.
Important: Ensure that you route all
mains electrical cables well away from any
adjacent heat source, such as the base of
the hob an oven or grill.
4
5
Live
Neutral
Earth
4
5
BROWN / L1
BLUE / N
GREEN/YELLOW / PE
230V.....240V
Terminal Block Connection
Schematic