EasyManua.ls Logo

Nortek DMC3-4 - Optional Connections and Features; Optional Door Release Connections

Nortek DMC3-4
16 pages
Print Icon
To Next Page IconTo Next Page
To Next Page IconTo Next Page
To Previous Page IconTo Previous Page
To Previous Page IconTo Previous Page
Loading...
9
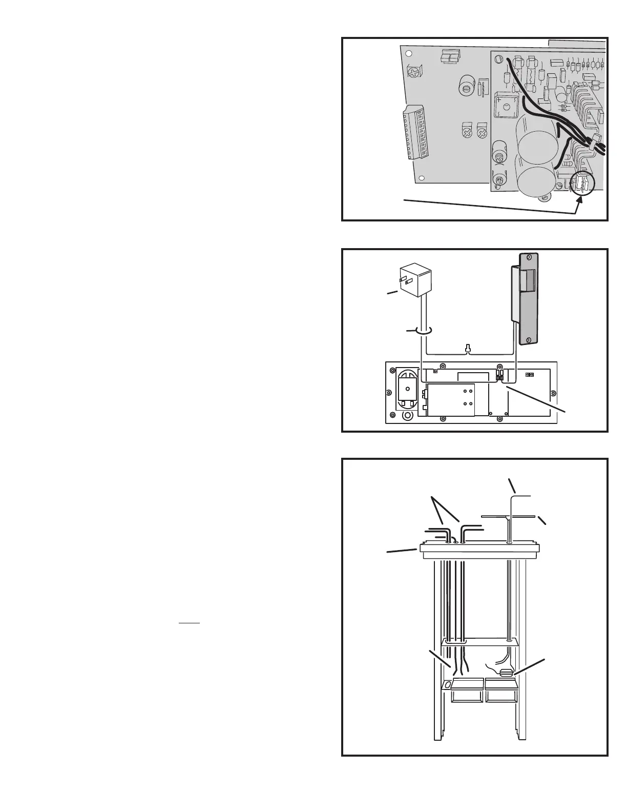
Chime Connections
Plug in the modular chime plug to the 4-pin connector
labeled as CHIME on the DMC3-4 Master Station (see
Figure 17).
Optional Door Release Connections
Connect the door release wires from each cable to the
terminals marked DOOR RELEASE on the DMC3-4 Master
Station (see Figure 18).
Antenna Connections
The number and style of antenna leads will vary based on
the intercom system being replaced. The DMC3-4 system is
designed to use the existing antenna.
The AM antenna is typically a 25-foot length of wire with an
in-line ferrite fi lter to reduce interference. The FM antenna
is a 25-foot length of twin lead with a “T” shaped wire dipole
at one end that attaches between rafters in the attic (see
Figure 19).
IMPORTANT: Isolate the antenna leads from the intercom station
cables by running them through a separate hole in the ceiling plate
and through the right hole in the top of the wall housing. If grouped
together, the intercom station cables can shield the antenna leads
resulting in poor radio reception. Also keep the antenna leads away
from metal duct work and aluminum backed insulation, which also can
reduce reception.
Follow the steps below to attach a 300 Ohm twin lead
antenna to the DMC3-4.
1. If the antenna has a connector on the end, cut the connector off.
2. Strip the two wire ends.
3. Connect the wire ends to terminals S1 and S2 on the DMC3-4
antenna board.
4. Connect a bare jumper wire (a 22 gauge speaker wire works well)
between terminals S3 and S4 on the DMC3-4 antenna board.
Follow the steps below to attach a separate AM/FM antenna
system with 300 Ohm FM twin lead and orange AM antenna
wire:
1. Connect the FM twin leads to terminals S1 and S2 on the DMC3-4
antenna board.
2. Connect the AM antenna (ORANGE wire) to terminal S4 on the
DMC3-4 antenna board.
3. Terminal S3 is not used in this confi guration.
Follow the steps below to connect a single orange wire
antenna system:
1. Connect the ORANGE wire to either terminal S1 or S2 on the DMC3-4
antenna board.
NOTE: Do not connect the wire to both terminals S1 and S2 doing this
will short out the FM antenna signal.
2. Connect a bare jumper wire (a 22 gauge speaker wire works well)
between terminals S3 and S4 on the DMC3-4 antenna board.
WIRE TO
STATIONS
AM ANTENNA WIRE
FM ANTENNA
DIPOLE
WALL HOUSING
(DMC1HC SHOWN)
AM FERRITE
FILTER
(RECOMMENDED)
CEILING
PLATE
WHEN USING THE
DMC1H HOUSING,
ROUTE CABLES
THE SAME WAY!
Figure 17. Chime Plug Connector
Figure 18. Door Release Connections
Figure 19. AM & FM Antenna Wiring
MODEL RT11
PLUG-IN
TRANSFORMER
2-CONDUCTOR
18 AWG
CABLE
MODEL DRW
ELECTRIC
DOOR STRIKE
REAR OF
DMC3-4 MASTER
DOOR
RELEASE
TERMINALS
PATIO
RM 9
RM 8
RM 7
RM 6
RM 5
RM 4
RM 3
RM 2
RM 1
PATIO
BLACK
WHITE
DOOR
STATION
RED BLACK
RED
BLACK
GREENS
PLUG CHIME
MODULE INTO
4-PIN "CHIME"
CONNECTOR
DMC3-4
CIRCUIT BOARD