EasyManua.ls Logo

ORTEC GEM40P4 - Page 9

Default Icon
20 pages
Print Icon
To Next Page IconTo Next Page
To Next Page IconTo Next Page
To Previous Page IconTo Previous Page
To Previous Page IconTo Previous Page
Loading...
GEM Series Coaxial HPGe Detector
Product Configuration Guide
9
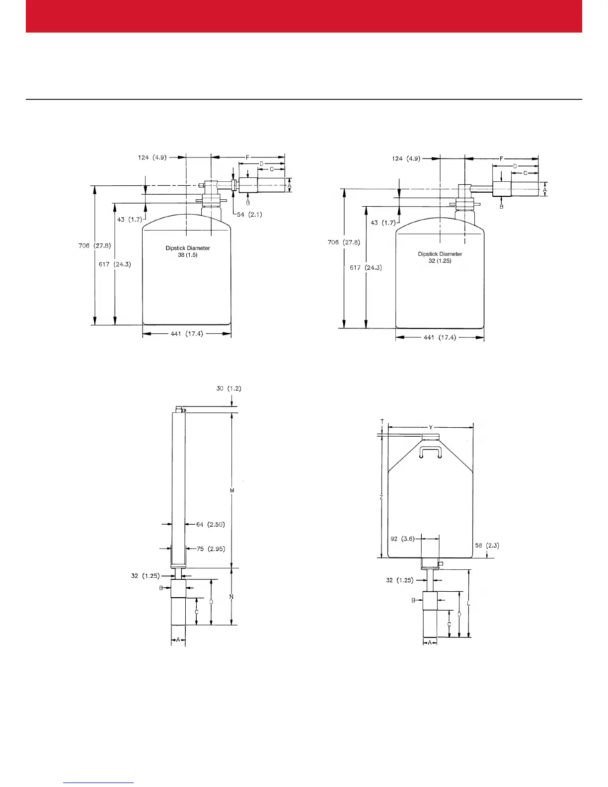
CFG-PSHP4 or
CFG-GG, DWR-0.7-SHP-1
Note: Cryostat/Dewar drawings are NOT to scale, see tables that follow for complete dimensions.
Dimensions are for reference only and subject to change, if dimensional constraints are critical, contact the factory.
CFG-SH, DWR-30-OPCFG-PH4, DWR-30-OP
CFG-PD4-30 (or -13 or -7.5) or
CFG-SD, DWR-30D (or -13D or -7.5D)

Related product manuals